易图网
室内设计文本
SU模型
施工图
文本
SU模型首页
样板间
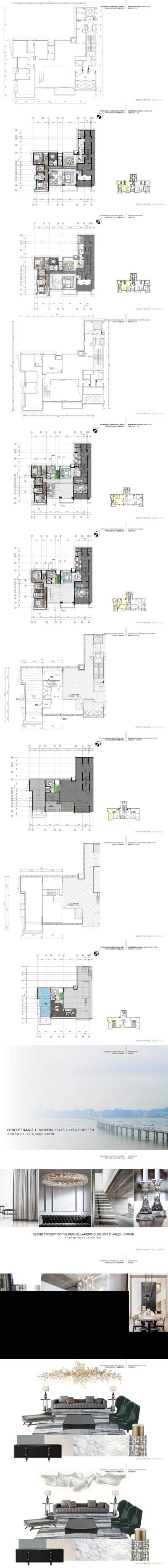
深圳.半岛城邦花园顶层复式深化方案
资源大小:33.00
下载文件
资源详情
编号:
2188
软件:
SketchUpppt
大小:
33.00
时间:
20220929
关键字:
模型介绍
更多
热门推荐
于山西棠精装别墅样板房方案设计
重庆首创·嘉陵项目三期平层F户型样板间设计深化方案
广发证券大厦新总部大楼设计方案下载
成都万华麓湖450平大平层豪宅样板间软装设计方案下载
融创绍兴越州府项目
北京万科大都会81号样板房概念设计方案
文安鲁能180M²新中式风样板间软装方案
苏州80苏小馆概念方案下载
中粮集团深圳前海亚太区域总部建筑方案下载
杭州湘湖逍遥庄园方案下载
热门标签
住宅
样板间
别墅
公寓
酒店民宿
办公空间
商业空间
售楼处
展厅
公共空间
餐饮空间
文化艺术空间
休闲娱乐空间
找设计师请拨打:
180-8488-1111
登录
首页
建筑图库
室内图库
全景动画
sketchup模型
首页
分享保存
客服
立即下载