易图网
室内设计文本
SU模型
施工图
文本
SU模型首页
酒店民宿
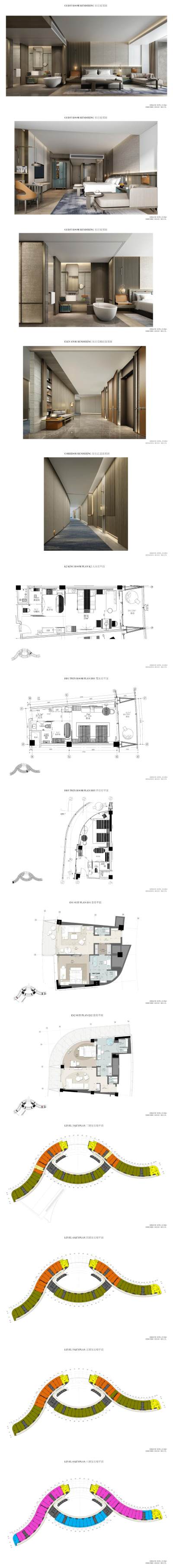
山东日照喜來登客房册方案
资源大小:104.80
下载文件
资源详情
编号:
2218
软件:
SketchUpppt
大小:
104.80
时间:
20220929
关键字:
模型介绍
更多
热门推荐
北京昌平保利铂尔曼酒店客房样板房方案下载
深圳康莱德酒店PPT建筑方案下载
乌镇阿丽拉酒店设计方案下载
西安中晶华邑酒店方案下载
上海维景酒店公寓翻新样板间PPT设计方案下载
阳朔alila糖舍酒店方案下载
厦门佳逸希尔顿酒店方案下载
曼谷康莱德酒店公区方案册下载
无锡灵山小镇拈花湾酒店民宿风PPT概念设计方案下载
重庆来福士洲际酒店最终深化方案下载
热门标签
住宅
样板间
别墅
公寓
酒店民宿
办公空间
商业空间
售楼处
展厅
公共空间
餐饮空间
文化艺术空间
休闲娱乐空间
找设计师请拨打:
180-8488-1111
登录
首页
建筑图库
室内图库
全景动画
sketchup模型
首页
分享保存
客服
立即下载