SU模型首页 样板间

深圳.半岛城邦花园顶层复式700㎡PPT概念方案下载

资源大小:19.80 下载文件

资源详情

编号: 1826

软件: SketchUpppt

大小: 19.80

时间: 20220818

关键字:

  • ppt
  • 庭院
  • 花园
  • 模型介绍

                图纸深度:方案                                                                                                 使用群众:大众

                图纸类型:室内设计                                                                                          图纸格式:PPT

               图纸张数:73张                                                                                                   设计风格:现代风格

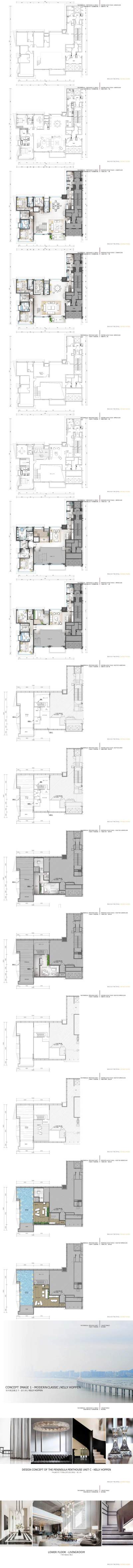
    资料为:深圳.半岛城邦园顶层复式700㎡PPT概念方案

    内容简介: 样板间是商品房的一个包装,也是购房者装修效果的参照实例。样板房是一个盘的脸面,其好坏直接影响房子的销售。

    部分图纸展示如下:

    深圳.半岛城邦<a href=https://www.yitu.cn/sketchup/huayi/index.html target=_blank class=infotextkey>花</a>园顶层复式丨700㎡PPT概念方案138P_01.jpg

    更多

    热门标签

    找设计师请拨打:

    180-8488-1111
    登录
    • 首页

    • 分享保存

    • 客服