SU模型首页 教育建筑图纸

某四层教学楼建筑施工图CAD图纸

资源大小:1.00 下载文件

资源详情

编号: 93953

软件: SketchUp2007

大小: 1.00

时间: 20220718

关键字:

  • 建筑
  • 模型介绍

               空间划分:成套建筑空间                                                                                     图纸深度 :施工图

               建筑类型:教学                                                                                                图纸格式:DWG

               设计风格:现代                                                                                                    包含图片:效果图

    资料为:某四层教学建筑施工图

    资料内容包括:全套施工图、夹层平面图、层图、夹层平面图、自然教室图等。空间设置合理规范,具有较高的参考价值,可作为参考学习的模板,供设计师、建筑师下载参考。

    部分图纸展示如下:

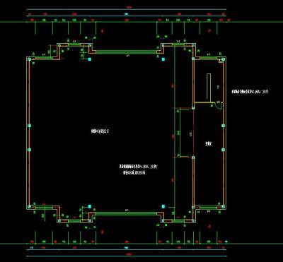
    夹层<a href=https://www.yitu.cn/su/7392.html target=_blank class=infotextkey>平面</a>.jpg

     

    夹层平面

     

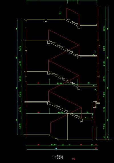
    <a href=https://www.yitu.cn/sketchup/louti/index.html target=_blank class=infotextkey><a href=https://www.yitu.cn/su/6782.html target=_blank class=infotextkey><a href=https://www.yitu.cn/su/8159.html target=_blank class=infotextkey>楼</a>梯</a></a>剖面.jpg

     

    梯剖面

     

    <a href=https://www.yitu.cn/su/7392.html target=_blank class=infotextkey>平面</a>图.jpg

     

    平面

     

    <a href=https://www.yitu.cn/su/7392.html target=_blank class=infotextkey>平面</a>图1.jpg

     

    平面

     

    自然教室详图.jpg

     

    自然教室详图

    更多

    热门标签

    找设计师请拨打:

    180-8488-1111
    登录