SU模型首页 教育建筑图纸

金山小学设计建筑图,小学建筑cad设计图纸下载

资源大小:2.20 下载文件

资源详情

编号: 90984

软件: SketchUp2007

大小: 2.20

时间: 20210128

关键字:

模型介绍

             空间划分:成套教学                                                                                     图纸深度:施工图

             建筑类型:小学建筑                                                                                         图纸格式:JPG

              结构形式:混凝土                                                                                             设计风格:现代

资料为:金小学设计建筑图,内附设计说明

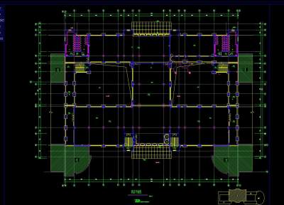
资料内容包括:全套金小学设计建筑图,里面包含一层平面图,二层平面图,三层平面图,四层平面图,六层平面图,设备机房平面布置图,屋顶平面图,总平面图等。该图纸制作详细规范,文字标注统一,细节详尽丰富,内容详实,尺寸大小合理,具有很高的参考价值,可以作为参考学习的模板,供设计师、建筑师下载参考。

部分图纸展示:

六层<a href=https://www.yitu.cn/su/7392.html target=_blank class=infotextkey>平面</a>图.jpg

 

六层平面

 

三层<a href=https://www.yitu.cn/su/7392.html target=_blank class=infotextkey>平面</a>图.jpg

 

三层平面

 

设备机房<a href=https://www.yitu.cn/su/7392.html target=_blank class=infotextkey>平面</a>布置图.jpg

 

设备机房平面布置图

 

四层<a href=https://www.yitu.cn/su/7392.html target=_blank class=infotextkey>平面</a>图.jpg

 

四层平面

 

屋顶<a href=https://www.yitu.cn/su/7392.html target=_blank class=infotextkey>平面</a>图.jpg

 

屋顶平面

 

一层<a href=https://www.yitu.cn/su/7392.html target=_blank class=infotextkey>平面</a>图.jpg

 

一层平面

 

总<a href=https://www.yitu.cn/su/7392.html target=_blank class=infotextkey>平面</a>图.jpg

 

平面

更多

热门标签

找设计师请拨打:

180-8488-1111
登录