易图网
房屋设计图
SU模型
施工图
文本
SU模型首页
建筑方案
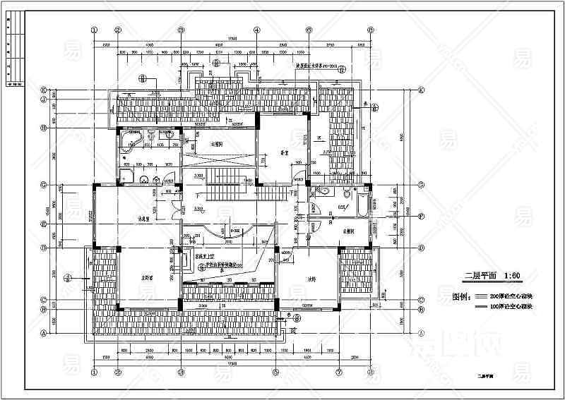
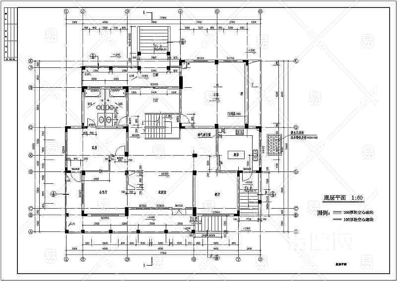
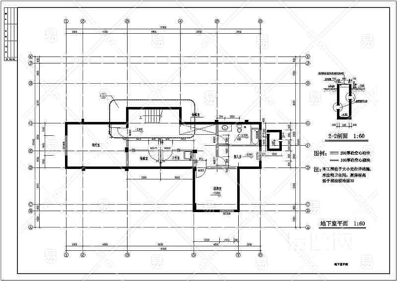
某私家豪华别墅建施图附效果图
资源大小:0.00
下载文件
资源详情
编号:
104147
软件:
SketchUp
大小:
0.00
时间:
20221130
关键字:
模型介绍
更多
热门推荐
某砖混结构六层住宅楼设计cad全套建筑施工图
某小区几栋砖混结构住宅楼设计cad全套建施图
住宅楼平面户型图
某五层砖混结构住宅楼建筑方案图
六层住宅楼建筑方案设计图
货柜剖面节点图cad素材
永春县某三层医院门诊综合楼CAD建筑结构设计图
教学综合楼方案图
某小区几栋砖混结构住宅楼建施图
某商住楼户型图
热门标签
户型图
建筑方案
多层住宅
高层住宅
宿舍楼
找设计师请拨打:
180-8488-1111
登录
首页
建筑图库
室内图库
全景动画
sketchup模型
首页
分享保存
客服
立即下载