SU模型首页 展厅展馆

古香古色中式风展厅室内设计施工图

资源大小:15.10 下载文件

资源详情

编号: 16950

软件: SketchUp2007

大小: 15.10

时间: 20191105

关键字:

  • 设计施工图
  • 工程施工图
  • 模型介绍

    空间划分:成套展览展示                              空间类型:展厅

    图纸深度:施工图                                         项目位置:北京

    设计风格:中式风格                                     图纸格式:CAD2000

    图纸张数:22张                                            设计时间:2012

    包含图片:效果图

    内容简介:

    [北京]古香古色中式风展厅室内设计施工图(含效果图)。采用现代的设计风格,对施工说明,目录,平面图(平面布置图,天布置图,天定位图,墙体定位图,面材质图,立面索引图);立面图;大样图进行设计

     

    [北京]古香古色中式风<a href=https://www.yitu.cn/sketchup/zhanting/index.html target=_blank class=infotextkey>展厅</a>室内<a href=https://www.yitu.cn/su/7590.html target=_blank class=infotextkey>设计</a><a href=https://www.yitu.cn/su/7392.html target=_blank class=infotextkey>平面</a>图

     

    [北京]古香古色中式风展厅室内设计平面

     

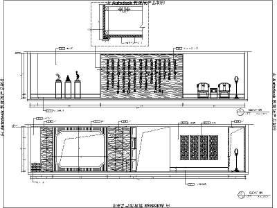
    [北京]古香古色中式风<a href=https://www.yitu.cn/sketchup/zhanting/index.html target=_blank class=infotextkey>展厅</a>室内<a href=https://www.yitu.cn/su/7590.html target=_blank class=infotextkey>设计</a>立面图

     

    [北京]古香古色中式风展厅室内设计立面图

     

    [北京]古香古色中式风<a href=https://www.yitu.cn/sketchup/zhanting/index.html target=_blank class=infotextkey>展厅</a>室内<a href=https://www.yitu.cn/su/7590.html target=_blank class=infotextkey>设计</a>立面图

     

    [北京]古香古色中式风展厅室内设计立面图

     

    [北京]古香古色中式风<a href=https://www.yitu.cn/sketchup/zhanting/index.html target=_blank class=infotextkey>展厅</a>室内<a href=https://www.yitu.cn/su/7590.html target=_blank class=infotextkey>设计</a>立面图

     

    [北京]古香古色中式风展厅室内设计立面图

     

    [北京]古香古色中式风<a href=https://www.yitu.cn/sketchup/zhanting/index.html target=_blank class=infotextkey>展厅</a>室内<a href=https://www.yitu.cn/su/7590.html target=_blank class=infotextkey>设计</a>立面图

     

    [北京]古香古色中式风展厅室内设计立面图

     

    [北京]古香古色中式风<a href=https://www.yitu.cn/sketchup/zhanting/index.html target=_blank class=infotextkey>展厅</a>室内<a href=https://www.yitu.cn/su/7590.html target=_blank class=infotextkey>设计</a>立面图

     

    [北京]古香古色中式风展厅室内设计立面图

     

    [北京]古香古色中式风<a href=https://www.yitu.cn/sketchup/zhanting/index.html target=_blank class=infotextkey>展厅</a>室内<a href=https://www.yitu.cn/su/7590.html target=_blank class=infotextkey>设计</a>立面图

     

    [北京]古香古色中式风展厅室内设计立面图

     

    [北京]古香古色中式风<a href=https://www.yitu.cn/sketchup/zhanting/index.html target=_blank class=infotextkey>展厅</a>室内<a href=https://www.yitu.cn/su/7590.html target=_blank class=infotextkey>设计</a>立面图

     

    [北京]古香古色中式风展厅室内设计立面图

     

    [北京]古香古色中式风<a href=https://www.yitu.cn/sketchup/zhanting/index.html target=_blank class=infotextkey>展厅</a>室内<a href=https://www.yitu.cn/su/7590.html target=_blank class=infotextkey>设计</a>效果图

     

    [北京]古香古色中式风展厅室内设计效果图

     

    [北京]古香古色中式风<a href=https://www.yitu.cn/sketchup/zhanting/index.html target=_blank class=infotextkey>展厅</a>室内<a href=https://www.yitu.cn/su/7590.html target=_blank class=infotextkey>设计</a>效果图

     

    [北京]古香古色中式风展厅室内设计效果图

    更多

    热门标签

    找设计师请拨打:

    180-8488-1111
    登录