SU模型首页 样板房

美式样板房装修设计施工图,样板房家装CAD施工图纸下载

资源大小:363.00 下载文件

资源详情

编号: 22779

软件: SketchUp2007

大小: 363.00

时间: 20200103

关键字:

模型介绍

美式样板房装修设计施工图,样板房家装CAD施工图纸下载,本案为三口之家,父母偶尔来住,用简约美式风格营造出一种自由、无拘无束的生活空间。原户型两房朝南、双阳台做成套间形式,睡眠、书房+衣帽间+大卫生间,提高生活品质和乐趣。

部分图纸展示:

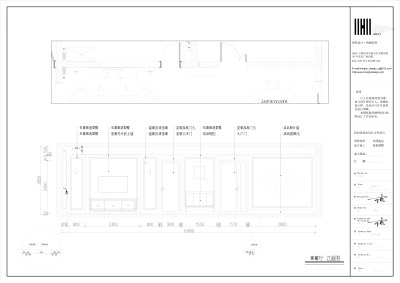
客<a href=https://www.yitu.cn/sketchup/canting/index.html target=_blank class=infotextkey><a href=https://www.yitu.cn/su/7825.html target=_blank class=infotextkey>餐厅</a></a>立面图.jpg

 

立面图

 

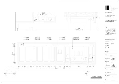
客<a href=https://www.yitu.cn/sketchup/canting/index.html target=_blank class=infotextkey><a href=https://www.yitu.cn/su/7825.html target=_blank class=infotextkey>餐厅</a></a>立面图02.jpg

 

立面图

 

内卫立面图.jpg

 

立面图

 

<a href=https://www.yitu.cn/su/7392.html target=_blank class=infotextkey>平面</a>布置图.jpg

 

平面布置图

 

原始结构图.jpg

 

原始结构图

 

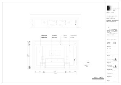
主卧立面图.jpg

 

立面图

更多

热门标签

找设计师请拨打:

180-8488-1111
登录