SU模型首页 样板房

联排别墅装饰CAD施工图,别墅设计CAD施工图纸下载

资源大小:22.90 下载文件

资源详情

编号: 22694

软件: SketchUp2007

大小: 22.90

时间: 20200102

关键字:

模型介绍

联排别墅装饰CAD施工图,别墅设计CAD施工图纸下载,本案为联排别墅,设计师根据业主的喜好,采用白色为基调,辅以暖色调搭配,以简欧的设计手法来营造现代奢华的感觉。一层为起居空间客厅餐厅分别独立;二层为私密生活空间,主卧与次卧各为套间,次卧还设计了兼备储藏功能的书房;三层和下室为客卧空间,并在三层露台设计了独立的洗衣房。完全满足了屋主生活、工作学习、会客等多方面的使用需求。

部分图纸展示:

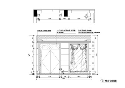
<a href=https://www.yitu.cn/sketchup/canting/index.html target=_blank class=infotextkey><a href=https://www.yitu.cn/su/7825.html target=_blank class=infotextkey>餐厅</a></a>1.jpg

立面图

 

<a href=https://www.yitu.cn/sketchup/canting/index.html target=_blank class=infotextkey><a href=https://www.yitu.cn/su/7825.html target=_blank class=infotextkey>餐厅</a></a>2.jpg

 

立面图

 

次卧1.jpg

 

立面图

 

次卧2.jpg

 

立面图

 

<a href=https://www.yitu.cn/sketchup/keting/index.html target=_blank class=infotextkey><a href=https://www.yitu.cn/su/6863.html target=_blank class=infotextkey>客厅</a></a>.jpg<a href=https://www.yitu.cn/sketchup/keting/index.html target=_blank class=infotextkey><a href=https://www.yitu.cn/su/6863.html target=_blank class=infotextkey>客厅</a></a>.jpg

 

立面图

 

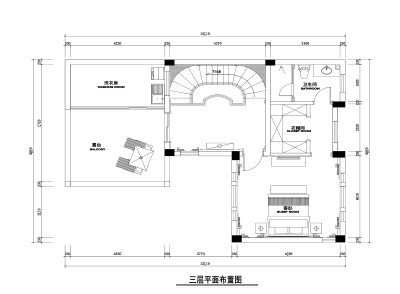
<a href=https://www.yitu.cn/su/7392.html target=_blank class=infotextkey>平面</a>1.jpg

 

平面

 

<a href=https://www.yitu.cn/su/7392.html target=_blank class=infotextkey>平面</a>3_看图王.jpg

 

平面

 

主卧1_看图王.jpg

 

立面图

 

主卧3_看图王.jpg

 

立面图

更多

热门标签

找设计师请拨打:

180-8488-1111
登录