SU模型首页 学校培训

现代幼儿园cad设计图纸,幼儿园建筑设计图纸下载

资源大小:4.40 下载文件

资源详情

编号: 90690

软件: SketchUp2007

大小: 4.40

时间: 20210111

关键字:

模型介绍

                                      空间划分:成套幼儿园                                                             图纸深度:施工图

                                      建筑类型:幼儿园                                                                     图纸格式:JPG

                                      设计风格:现代

资料为:现代幼儿园cad设计图纸

资料内容包括:全套现代幼儿园cad设计图纸,底层平面图,概览图,栏杆立面图,剖面图,三层平面图,屋顶平面图,一层至四层平面图,轴立面图,轴立面图等,该图纸制作详细规范,文字标注统一,细节详尽丰富,内容详实,尺寸大小合理,具有很高的参考价值,可以作为参考学习的模板,供设计师、建筑师下载参考。

部分图纸展示:

三层<a href=https://www.yitu.cn/su/7392.html target=_blank class=infotextkey>平面</a>图.jpg

 

三层平面

 

屋顶<a href=https://www.yitu.cn/su/7392.html target=_blank class=infotextkey>平面</a>图.jpg

 

屋顶平面

 

一层至四层<a href=https://www.yitu.cn/su/7392.html target=_blank class=infotextkey>平面</a>图.jpg

 

一层至四层平面

 

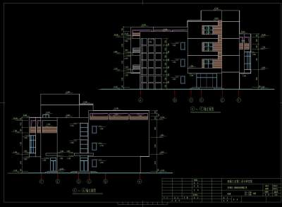
轴立面图.jpg

 

轴立面图

 

轴立面图1.jpg

 

轴立面图

 

底层<a href=https://www.yitu.cn/su/7392.html target=_blank class=infotextkey>平面</a>图.jpg

 

底层平面

更多

热门标签

找设计师请拨打:

180-8488-1111
登录