SU模型首页 图库集

原创中式小木屋CAD施工图纸,木屋CAD建筑图纸下载

资源大小:1.10 下载文件

资源详情

编号: 21141

软件: SketchUp2007

大小: 1.10

时间: 20191207

关键字:

  • 木屋
  • 模型介绍

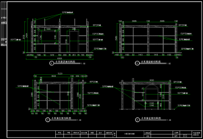
     原创中式小木屋CAD施工图纸,木屋CAD建筑图纸下载内容简介:图纸含有小木屋结构剖面图、立面图、结构立面图等,内容详实,具有较高的参考价值。

    部分图纸展示:

    QQ截图20191207145607.png

     

    小木屋结构剖面图

     

    QQ截图20191207145617.png

     

    小木屋结构图

     

    QQ截图20191207145630.png

     

    小木屋立面图

     

    QQ截图20191207145639.png

     

    小木屋立面图

    更多

    热门标签

    找设计师请拨打:

    180-8488-1111
    登录