SU模型首页 售楼中心

海宁会所CAD全套施工图,售楼处CAD施工图下载

资源大小:122.20 下载文件

资源详情

编号: 23022

软件: SketchUp2007

大小: 122.20

时间: 20200525

关键字:

模型介绍

空间划分:成套商业                                         空间类型:

图纸深度:方案(初设图),施工图                    项目位置:海宁

设计风格:现代风格                                         图纸格式:JPG,CAD2000,PDF

包含图片:效果图                                           

资料内容包含:处室内效果图18张 、设计方案(JPG,PDF)、 施工图(CAD+PDF格式)、施工图设计说明、图纸目录、材料表、详图及门表等,售部中的各个功能区互相连接,这样的空间链接才能让顾客感到盘的智能化。同时空间内可安装一些动态的元素,以起到动态与静态的交融,整体气氛更对销售员与顾客的交流提供良好的环境。

 

會議室  .jpg

 

会议室

 

健身室.jpg

 

健身房

 

 

<a href=https://www.yitu.cn/sketchup/diantizoulang/index.html target=_blank class=infotextkey>走廊</a>.jpg

 

 

大厅

 

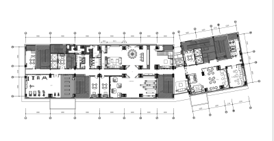
1.png

 

平面图1

 

 

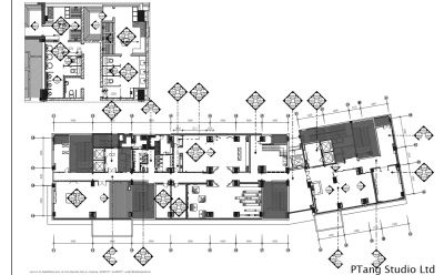
2.png

 

平面图2

 

 

3.png

 

 

立面图

更多

热门标签

找设计师请拨打:

180-8488-1111
登录