SU模型首页 售楼中心

最新售楼处全套施工图+效果图

资源大小:81.00 下载文件

资源详情

编号: 16778

软件: SketchUp2007

大小: 81.00

时间: 20191102

关键字:

  • 工程施工图
  • 工程设计图
  • 模型介绍

    空间划分:办公空间                       空间类型:

    图纸深度:竣工图                           项目位置:浙江

    设计风格:现代风格                       图纸格式:JPG,CAD2000

    层数:2层                                   设计时间:2018

    包含图片:效果图

    内容简介:PPT方案、效果图、施工图(封面、目录、设计说明、平面图、立面图、节点详图、门表详图、梯详图、轿厢详图等),接待区、展示台、服务区、签约区、卫生间,这部分的装修设计要在顺应客户看房的同时,尽量的将客户相关活动都集中在一起,这样既能增加气,又方便客户之间互相感染。

     

     

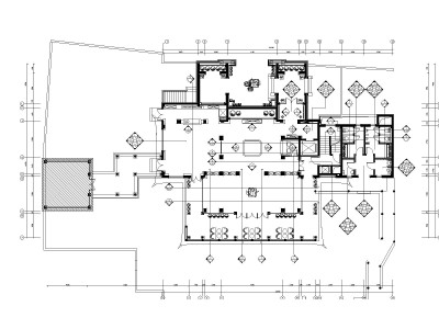
    1F<a href=https://www.yitu.cn/su/7392.html target=_blank class=infotextkey>平面</a>系统图

     

     

    1F平面系统图

     

     

    2F<a href=https://www.yitu.cn/su/7392.html target=_blank class=infotextkey>平面</a>系统图

     

     

    2F平面系统图

     

     

    3一层新建墙体尺寸图

     

     

    一层新建墙体尺寸图

     

     

    4一层完成面尺寸图

     

     

    一层完成面尺寸图

     

     

    5一层<a href=https://www.yitu.cn/su/7872.html target=_blank class=infotextkey>地</a>坪布置图

     

     

    一层坪布置图

     

     

    6一层天<a href=https://www.yitu.cn/sketchup/huayi/index.html target=_blank class=infotextkey>花</a>配置图

     

     

    一层坪布置图

     

     

    6一层天<a href=https://www.yitu.cn/sketchup/huayi/index.html target=_blank class=infotextkey>花</a>配置图

     

     

    一层天配置图

     

     

    7一层<a href=https://www.yitu.cn/su/5628.html target=_blank class=infotextkey>水</a>位点位图

     

     

    一层位点位图

     

     

    8一层强弱电出线图

     

     

    一层强弱电出线图

     

     

    9一层立面索引图

     

     

    一层立面索引图

     

     

    08

     

     

    设计方案-整体风格

     

     

    09

     

     

    设计方案-处1F洽谈区/吧区

     

     

    10

     

     

    设计方案-处1F洽谈区

     

     

    11

     

     

    设计方案-处2F餐厅包房

     

     

    12

     

     

    设计方案-处2F餐厅包房

     

     

    13

     

     

    设计方案-处硬装

     

     

    14

     

     

    设计方案-处1F接待大厅效果图

     

     

    15

     

     

    设计方案-处1F洽谈区/吧区效果图

     

     

    16

     

     

    设计方案-处1F洽谈区效果图

     

     

    image18

     

     

    处效果图

     

     

    image19

     

     

    处效果图1

     

     

    image20

     

     

    处效果图2

     

     

    image21

     

     

    处效果图3

     

     

    一层<a href=https://www.yitu.cn/su/7392.html target=_blank class=infotextkey>平面</a>总缩略图

     

     

    一层平面总缩略图

     

     

    总缩略图

     

     

    总缩略图

     

    更多

    热门标签

    找设计师请拨打:

    180-8488-1111
    登录