SU模型首页 商业零售

专业儿童摄影中心全套室内设计施工图

资源大小:5.30 下载文件

资源详情

编号: 17114

软件: SketchUp2007

大小: 5.30

时间: 20191105

关键字:

  • 工程施工图
  • 设计施工图纸
  • 模型介绍

    空间类型:店铺                     空间划分:成套商业

    图纸深度:施工图                 项目位置:广东

    设计风格:现代风格              图纸格式:CAD2000

    设计时间:2013                     图纸张数:44张

    包含:封面,目录,门表,1-2层平面图(平面布置图,天布置图,天灯局定位图,天灯具开关连线图,插座布置图,面铺贴图,放线图,索引图);立面图;大样图,动与静的结合,巧妙的运用幻灯,全息摄影,激光、录像、电影、多媒体等现代单像技术,虚拟现实技术,使静态展品得到拓展,造成生动活泼、气氛热烈的展示环境,具有身临其境的效果。

     

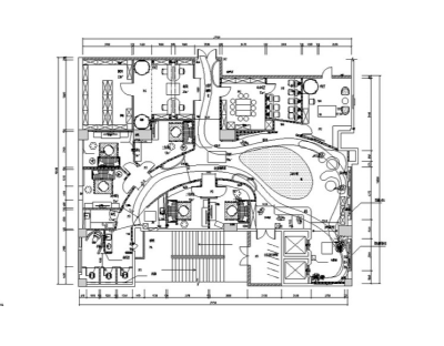
    [广州]专业<a href=https://www.yitu.cn/sketchup/ertong/index.html target=_blank class=infotextkey>儿童</a>摄影中心全套室内<a href=https://www.yitu.cn/su/7590.html target=_blank class=infotextkey>设计</a><a href=https://www.yitu.cn/su/7392.html target=_blank class=infotextkey>平面</a>图

     

    室内设计平面

     

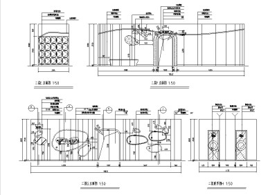
    [广州]专业<a href=https://www.yitu.cn/sketchup/ertong/index.html target=_blank class=infotextkey>儿童</a>摄影中心全套室内<a href=https://www.yitu.cn/su/7590.html target=_blank class=infotextkey>设计</a>立面图

     

    室内设计立面图

     

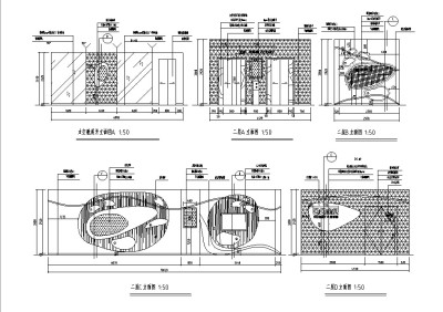
    [广州]专业<a href=https://www.yitu.cn/sketchup/ertong/index.html target=_blank class=infotextkey>儿童</a>摄影中心全套室内<a href=https://www.yitu.cn/su/7590.html target=_blank class=infotextkey>设计</a>立面图

     

    室内设计立面图

     

    [广州]专业<a href=https://www.yitu.cn/sketchup/ertong/index.html target=_blank class=infotextkey>儿童</a>摄影中心全套室内<a href=https://www.yitu.cn/su/7590.html target=_blank class=infotextkey>设计</a>立面图

     

    室内设计立面图

     

    [广州]专业<a href=https://www.yitu.cn/sketchup/ertong/index.html target=_blank class=infotextkey>儿童</a>摄影中心全套室内<a href=https://www.yitu.cn/su/7590.html target=_blank class=infotextkey>设计</a>立面图

     

    室内设计立面图

     

    [广州]专业<a href=https://www.yitu.cn/sketchup/ertong/index.html target=_blank class=infotextkey>儿童</a>摄影中心全套室内<a href=https://www.yitu.cn/su/7590.html target=_blank class=infotextkey>设计</a>缩略图

     

    室内设计缩略图

    更多

    热门标签

    找设计师请拨打:

    180-8488-1111
    登录