图纸张数:56张
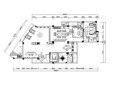
包含:目录,平面图(原始结构图,墙体拆除图,墙体砌筑图,平面布置图,平面尺寸参考图,地面物料图,顶面布置图,顶面尺寸图,灯具定位图,开关布置图,强电插座布置图,弱电插座布置图,水管走向图,立面索引图);利用各种人为的设计元素去突出商品的形态和个性,突出商品的亮点,让人直观的认识了解商品,以便吸引消费者购买商品。
像素:1500*888


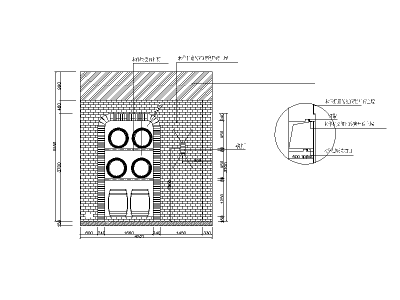
现代风格酒庄设计CAD施工图立面图

现代风格酒庄设计CAD施工图立面图

现代风格酒庄设计CAD施工图立面图

现代风格酒庄设计CAD施工图立面图

现代风格酒庄设计CAD施工图立面图

现代风格酒庄设计CAD施工图立面图

现代风格酒庄设计CAD施工图缩略图
180-8488-1111
登录