图纸深度:施工图 项目位置:云南
设计风格:欧陆风格 图纸格式:CAD2000,JPG,PDF
包含图片:效果图
包含:补充家具尺寸图和灯具尺寸图、封面目录、节点图、立面图、装饰图、天花尺寸图;电气图纸:电气系统说明、电气一层设计、电气二次设计等;暖通图纸、安装实景图;给排水图纸、喷淋水管图纸;施工实景图111张,动与静的结合,巧妙的运用幻灯,全息摄影,激光、录像、电影、多媒体等现代单像技术,虚拟现实技术,使静态展品得到拓展,造成生动活泼、气氛热烈的展示环境,具有身临其境的效果。

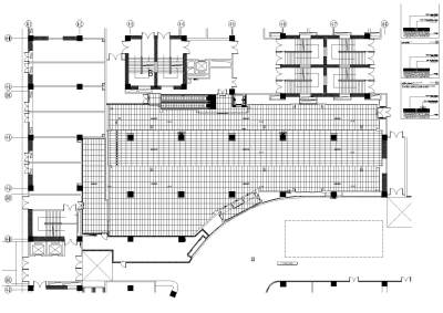
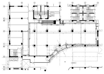
二层家具布置图

二层平面布置图

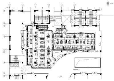
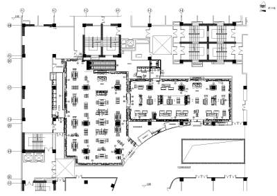
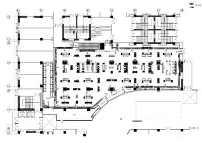
一层地面布置图

一层隔墙尺寸图

一层家具尺寸图

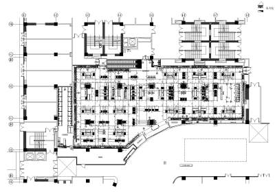
一层平面布置图

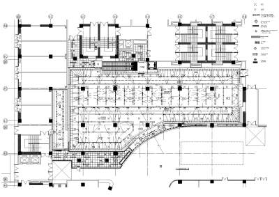
一层天花综合布置图

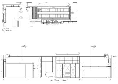
内立面图(1)

内立面图(2)

内立面图(3)

内立面图(4)

空调安装大样图

店面施工图实景

店面施工图实景

店面施工图实景

店面施工图实景

店面施工图实景

店面施工图实景

店面施工图实景

附件预览图

施工实景效果图预览
180-8488-1111
登录