SU模型首页 商业零售

咖啡厅装修设计施工图方案

资源大小:18.40 下载文件

资源详情

编号: 17101

软件: SketchUp2007

大小: 18.40

时间: 20191105

关键字:

  • 工程施工图
  • 基础施工图
  • 模型介绍

    空间类型:店铺                          空间划分:其他空间

    图纸深度:施工图                      项目位置:浙江

    设计风格:现代风格                   图纸格式:CAD2000,JPG

    设计时间:2017                          图纸张数:56张

    简介:一定要在造就适用市场和顾客双向美感需求的同时,重视转达消息的精确性,在达到顾客物质和精神的双向需求,从而激发大家的情绪,调动消费冲动,实现商业收益。

     

     

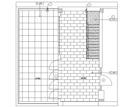
    一层<a href=https://www.yitu.cn/su/7872.html target=_blank class=infotextkey>地</a>面铺装图

     

     

    一层面铺装图

     

     

    二层<a href=https://www.yitu.cn/su/7872.html target=_blank class=infotextkey>地</a>面铺装图

     

     

    二层面铺装图

     

     

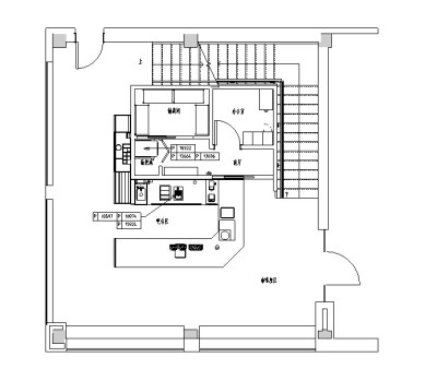
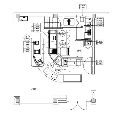
    给排<a href=https://www.yitu.cn/su/5628.html target=_blank class=infotextkey>水</a>布局图(2)

     

     

    给排布局图

     

     

    给排<a href=https://www.yitu.cn/su/5628.html target=_blank class=infotextkey>水</a>布局图

     

     

    给排布局图

     

     

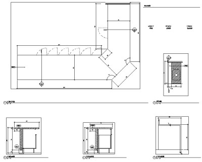
    节点<a href=https://www.yitu.cn/su/7590.html target=_blank class=infotextkey>设计</a>大样图

     

     

    节点设计大样图

     

     

    三层<a href=https://www.yitu.cn/su/7872.html target=_blank class=infotextkey>地</a>面铺装图

     

     

    三层面铺装图

     

     

    三维视图

     

     

    三维视图

    更多

    热门标签

    找设计师请拨打:

    180-8488-1111
    登录