SU模型首页 商业零售

高端橱柜连锁店装修效果图

资源大小:253.80 下载文件

资源详情

编号: 17088

软件: SketchUp2007

大小: 253.80

时间: 20191105

关键字:

  • 建筑图纸大全
  • 楼梯施工图
  • 工程施工图
  • 模型介绍

    空间类型:店铺                                           空间划分:其他空间                               

    图纸深度:施工图                                       项目位置:北京,上海                               

    设计风格:现代风格                                     图纸格式:CAD2000,DOC,PDF

    设计时间:2016,2017                                  包含图片:效果图

    图纸张数:46张

    包含:北京店效果图,上海店效果图及物料,深圳店效果图,大连店效果图,杭州店效果图,上海+北京店CAD全套施工图,上海+北京店物料书,店铺空间设计最主要的是让店铺环境与品牌文化达到完美融合,它的标准全部都是要以顾客的需求和体验为设计基础,重视顾客的体验。

     

     

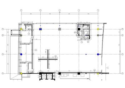
    一层<a href=https://www.yitu.cn/su/7392.html target=_blank class=infotextkey>平面</a>图-隔墙尺寸图

     

     

    一层平面图-隔墙尺寸图

     

     

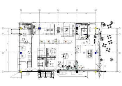
    一层<a href=https://www.yitu.cn/su/7392.html target=_blank class=infotextkey>平面</a>图-<a href=https://www.yitu.cn/su/7392.html target=_blank class=infotextkey>平面</a>及索引

     

     

    一层平面图-平面及索引

     

     

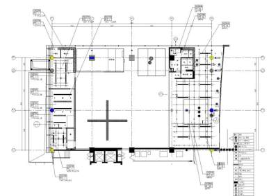
    一层<a href=https://www.yitu.cn/su/7392.html target=_blank class=infotextkey>平面</a>图-完成面尺寸图

     

     

    一层平面图-完成面尺寸图

     

     

    一层<a href=https://www.yitu.cn/su/7392.html target=_blank class=infotextkey>平面</a>图-综合天<a href=https://www.yitu.cn/sketchup/huayi/index.html target=_blank class=infotextkey>花</a>图

     

     

    一层平面图-综合天

     

     

    立面图(1)

     

     

    立面图(1)

     

     

    0001

     

     

    店面效果图

     

     

    0002

     

     

    店面效果图

     

     

    0003

     

     

    店面效果图

     

     

    0004

     

     

    店面效果图

     

     

    0005

     

     

    店面效果图

    更多

    热门标签

    找设计师请拨打:

    180-8488-1111
    登录