SU模型首页 商业零售

化妆品旗舰店竣工图

资源大小:165.80 下载文件

资源详情

编号: 17080

软件: SketchUp2007

大小: 165.80

时间: 20191105

关键字:

  • 室内施工图
  • 建筑工程图纸
  • 模型介绍

    空间类型:店铺                         空间划分:成套商业

    图纸深度:施工图                     项目位置:四川

    设计风格:现代风格                  图纸格式:JPG,CAD2000

    设计时间:2017                        包含图片:效果图,实景照片

    图纸张数:28张

    包含:竣工图-二层平面图、封面图、梯图、内立面图、外墙图、一层平面图等,一些化妆品、饰品、家居专卖店就是店铺空间设计中比较经典的例子。产品展示特征独具特色别致,特征明显,不但使企业品牌形象越来越个性时尚独特,还将多种多样产品的外在品牌形象,宣传品牌的感召力,影响着品牌的未来发展和延伸。

     

     

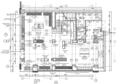
    <a href=https://www.yitu.cn/su/7392.html target=_blank class=infotextkey>平面</a>图

     

     

    平面

     

     

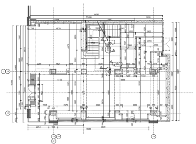
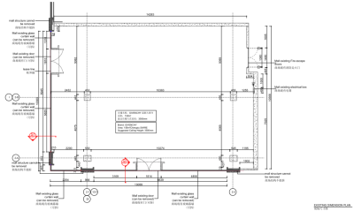
    现场尺寸图

     

     

    现场尺寸图

     

     

    现场天<a href=https://www.yitu.cn/sketchup/huayi/index.html target=_blank class=infotextkey>花</a>尺寸图

     

     

    现场天尺寸图

     

     

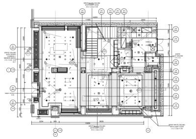
    综合天<a href=https://www.yitu.cn/sketchup/huayi/index.html target=_blank class=infotextkey>花</a>图

     

     

    综合天

     

     

    底下放线图

     

     

    底下放线图

     

     

    现场切面图

     

     

    现场切面图

     

     

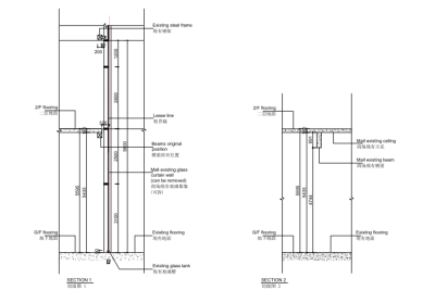
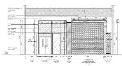
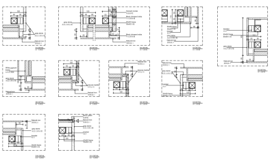
    <a href=https://www.yitu.cn/su/7872.html target=_blank class=infotextkey>地</a>下墙身饰面大样图

     

     

    下墙身饰面大样图

     

     

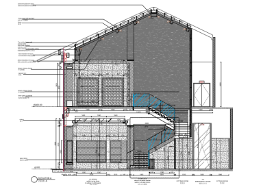
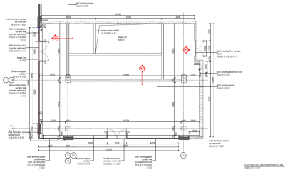
    立面图A

     

     

    立面图A

     

     

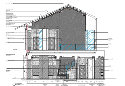
    立面图B

     

     

    立面图B

     

     

    立面图D

     

     

    立面图D

    更多

    热门标签

    找设计师请拨打:

    180-8488-1111
    登录