SU模型首页 商业零售

娱乐概念店高清效果图

资源大小:508.20 下载文件

资源详情

编号: 17076

软件: SketchUp2007

大小: 508.20

时间: 20191105

关键字:

  • 施工图制作
  • 建筑施工图纸
  • 模型介绍

    空间类型:店铺                         空间划分:成套商业

    图纸深度:施工图                     项目位置:上海

    设计风格:现代风格                  图纸格式:JPG,CAD2000

    设计时间:2016                         包含图片:效果图

    目规模:4000平方米                 设计周期:2016年3月-5月

    竣工时间:2016年8月

    介绍:服务于爱音乐,爱生活,对生活有极致追求的精英圈层,成为上海滩新一处蕴含醇厚文化与精致品味的高档娱乐目的。一共有41间主题包房,涵盖了豪华、时尚、梦幻等诸多风格,包括设置了环绕式动态投影墙的海景主题包房、极具动感立体效果的六角形包房、以黑色和白色为主旋律的包房、彩绘圆顶搭配动态编程灯光的旋转木房等等,最大程度满足不同审美群的娱乐需求。

     

     

    <a href=https://www.yitu.cn/su/7392.html target=_blank class=infotextkey>平面</a>索引图

     

     

    平面索引图

     

     

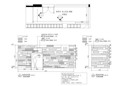
    区域立面图(1)

     

     

    区域立面图(1)

     

     

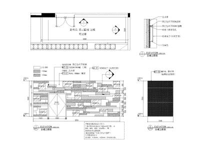
    区域立面图(2)

     

     

    区域立面图(2)

     

     

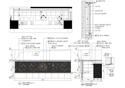
    区域立面图(3)

     

     

    区域立面图(3)

     

     

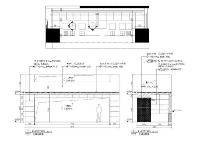
    区域立面图(4)

     

     

    区域立面图(4)

     

     

    V_Show_proof_01-1100x1653

     

     

    高清效果图

     

     

    V_Show_proof_06-1100x802

     

     

    高清效果图

     

     

    V_Show_proof_07-1100x734

     

     

    高清效果图

     

     

    V_Show_proof_08-1100x733

     

     

    高清效果图

     

     

    V_Show_proof_10-1100x736

     

     

    高清效果图

     

     

    V_Show_proof_11-1100x732

     

     

    高清效果图

     

     

    V_Show_proof_12-1100x733

     

     

    高清效果图

    更多

    热门标签

    找设计师请拨打:

    180-8488-1111
    登录