SU模型首页 商业零售

手工烘焙坊装修效果方案

资源大小:37.20 下载文件

资源详情

编号: 17072

软件: SketchUp2007

大小: 37.20

时间: 20191105

关键字:

  • 工程施工图
  • 建筑图纸大全
  • 模型介绍

    空间类型:店铺,其他                            图纸深度:施工图

    项目位置:上海                                    设计风格:现代风格

    图纸格式:JPG,CAD2000,PDF            设计时间:2015

    包含图片:效果图

    资料内容包含:施工图CAD+PDF、全套效果图、暖通图纸等,店铺展示设计就是要最大限度的吸引流量与引流顾客,就一定要在造就适用市场和顾客双向美感需求的同时,重视转达消息的精确性,在达到顾客物质和精神的双向需求,从而激发大家的情绪,调动消费冲动,实现商业收益。

     

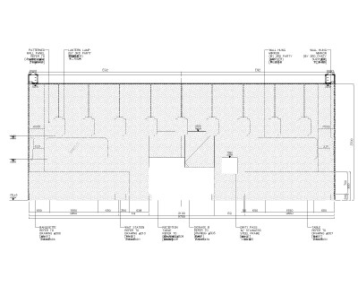
    1<a href=https://www.yitu.cn/su/7392.html target=_blank class=infotextkey>平面</a>图_看图王

     

    平面

     

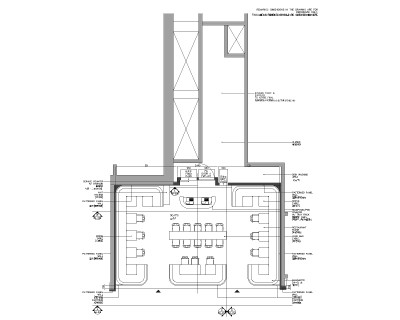
    2天<a href=https://www.yitu.cn/sketchup/huayi/index.html target=_blank class=infotextkey>花</a>图_看图王

     

     

    3<a href=https://www.yitu.cn/su/7656.html target=_blank class=infotextkey>插座</a>配置图_看图王

     

    插座配置图

     

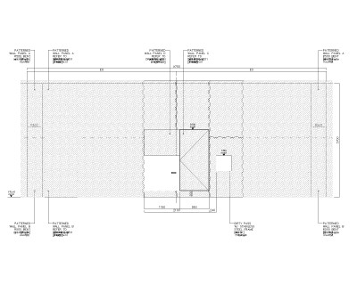
    4立面图1_看图王

     

    立面图1

     

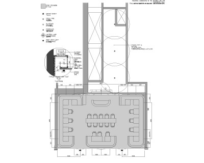
    5立面图2_看图王

     

    立面图2

     

    6立面图3_看图王

     

    立面图3

     

    0005[4]

     

    内装修效果图1

     

    0008

     

    内装修效果图2

     

    0009

     

    内装修效果图3

     

    0010

     

    内装修效果图4

     

    0011

     

    内装修效果图5

     

    总缩略图

     

    总缩略图

    更多

    热门标签

    找设计师请拨打:

    180-8488-1111
    登录