图纸深度:施工图 项目位置:广东
设计风格:现代风格 图纸格式:JPG,CAD2000,PDF,XLS
包含图片:效果图
内容简介:
店面装修施工图(原始平面图、围挡平面图、围挡立面图、平面布置图、家具定位图、新建墙体放样图、地坪材质图、插座分布图、天花平面图、灯具尺寸图、灯具投射图)、电气施工图、机电施工图等。就建筑内部环境来说,如何引导顾客进入商店,并使顾客顺利地游览选购商品,灵活地运用建筑面积以避免死角,安全、迅速地疏散人流是设计的主要目标。

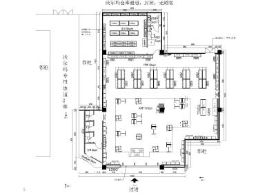
平面布置图

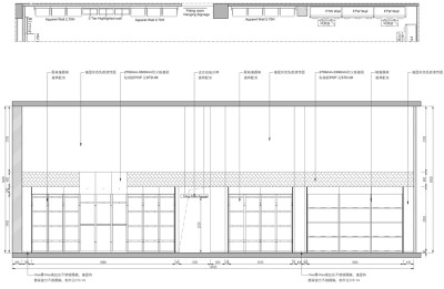
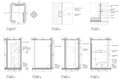
门橱A立面图

门橱B立面图

C立面图

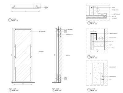
大样图

节点详图

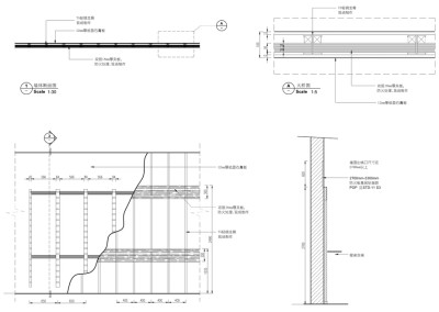
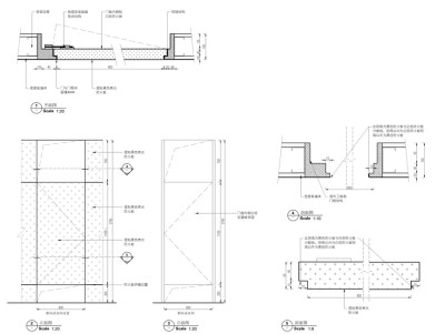
剖立面大样图

剖面图

剖面图大样

平面效果图

货架效果图

货架效果图

店面效果图

店面效果图

附件预览图
180-8488-1111
登录