SU模型首页 商业零售

奢侈品专卖店CAD装修设计施工图

资源大小:129.20 下载文件

资源详情

编号: 16931

软件: SketchUp2007

大小: 129.20

时间: 20191104

关键字:

  • 施工图规范
  • 施工图设计文件
  • 模型介绍

    空间划分:成套商业                          空间类型:专卖店,店铺

    图纸深度:施工图                              项目位置:河南

    设计风格:现代风格                          设计日期:2014

    图纸格式:JPG,CAD2000                 包含图片:效果图

    简介:平面系统图,尺寸图,坪饰面图,立面图,节点大样图,外立面图,建筑效果图,部分变更及施工范围划分,展示陈列,主要是通过视觉传达设计的作用,结合商品同顾客间的交流,把商品正确而有效介绍给顾客的一种表现方法,其展示陈列的形式主要包括汇集、开放、重点、搭配、及样品陈列等。

     

    天<a href=https://www.yitu.cn/sketchup/huayi/index.html target=_blank class=infotextkey>花</a>布置图

     

    布置图

     

    <a href=https://www.yitu.cn/su/7392.html target=_blank class=infotextkey>平面</a>系统图

     

    平面系统图

     

    尺寸图

     

    尺寸图

     

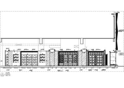
    立面图(1)

     

    立面图(1)

     

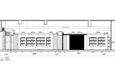
    立面图(2)

     

    立面图(2)

     

    立面图(3)

     

    立面图(3)

     

    300534031199134067624182413

     

    建筑效果图

     

    300534031199134067655511112

     

    建筑效果图

     

    QQ截图20180129194625

     

    建筑效果图

     

    节点图缩略图

     

    节点图缩略图

     

    缩略图

     

    缩略图

    更多

    热门标签

    找设计师请拨打:

    180-8488-1111
    登录