SU模型首页 商业零售

旗舰店装修施工效果案例

资源大小:40.10 下载文件

资源详情

编号: 16930

软件: SketchUp2007

大小: 40.10

时间: 20191104

关键字:

  • 建筑电工图纸
  • 基础施工图
  • 模型介绍

    空间划分:成套商业                           空间类型:专卖店,店铺

    图纸深度:竣工图                               项目位置:湖北

    设计风格:现代风格                           设计日期:2017           

    图纸格式:JPG,CAD2000                  包含图片:效果图

    层数:4层

    简介:效果图、CAD施工图(平面、立面、大样)、材料部分、设计图纸,展示陈列,主要是通过视觉传达设计的作用,结合商品同顾客间的交流,把商品正确而有效介绍给顾客的一种表现方法,其展示陈列的形式主要包括汇集、开放、重点、搭配、及样品陈列等。

     

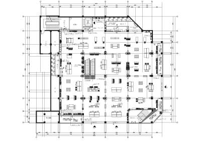
    一层<a href=https://www.yitu.cn/su/7392.html target=_blank class=infotextkey>平面</a>布置图

     

    一层平面布置图

     

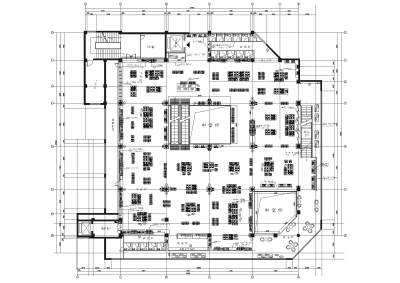
    二层<a href=https://www.yitu.cn/su/7392.html target=_blank class=infotextkey>平面</a>布置图

     

    二层平面布置图

     

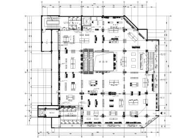
    三层<a href=https://www.yitu.cn/su/7392.html target=_blank class=infotextkey>平面</a>布置图

     

    三层平面布置图

     

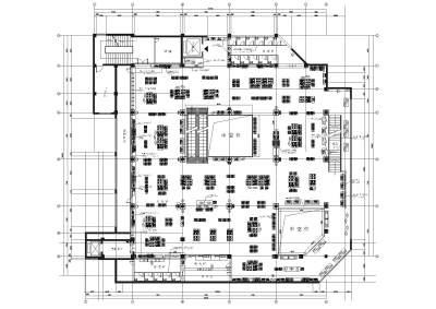
    4层<a href=https://www.yitu.cn/su/7392.html target=_blank class=infotextkey>平面</a>布置图

     

    4层平面布置图

     

    <a href=https://www.yitu.cn/su/6833.html target=_blank class=infotextkey>灯具</a>尺寸图

     

    灯具尺寸图

     

    <a href=https://www.yitu.cn/su/7872.html target=_blank class=infotextkey>地</a>面铺装图

     

    面铺装图

     

    外立面

     

    外立面

     

    外立面2

     

    外立面2

     

    1F-全景俯视效果a

     

    1F-全景俯视效果

     

    2F-全景俯视效果a

     

    2F-全景俯视效果

     

    3F-全景俯视效果a

     

    3F-全景俯视效果

     

    4F-全景俯视效果a

     

    4F-全景俯视效果

    更多

    热门标签

    找设计师请拨打:

    180-8488-1111
    登录