SU模型首页 商业零售

奢侈品店室内装修CAD施工效果方案

资源大小:51.90 下载文件

资源详情

编号: 16929

软件: SketchUp2007

大小: 51.90

时间: 20191104

关键字:

  • 工程施工图
  • 建筑图纸大全
  • 模型介绍

    空间划分:办公空间                    空间类型:专卖店,店铺

    图纸深度:施工图                       项目位置:上海

    设计风格:现代风格                    设计日期:2018

    图纸格式:JPG,CAD2000           包含图片:效果图

    简介:效果图9张、设计方案PDF、封面、目录、施工图纸、材料表、卷帘资料、勘察报告等,商业环境功能布局的要点是要以发挥出商业空间的最大作用,提高商业的经营效益为前提;同时还要考虑到方便与吸引顾客、易于营销活动的开展与管理。

     

     

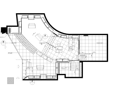
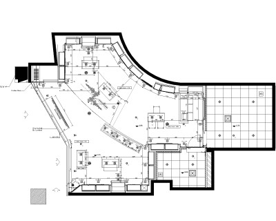
    1<a href=https://www.yitu.cn/su/7392.html target=_blank class=infotextkey>平面</a>布置图_看图王

     

     

    平面布置图

     

     

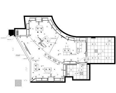
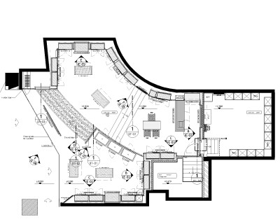
    2天<a href=https://www.yitu.cn/sketchup/huayi/index.html target=_blank class=infotextkey>花</a><a href=https://www.yitu.cn/su/6833.html target=_blank class=infotextkey>灯具</a>布置图_看图王

     

     

    灯具布置图

     

     

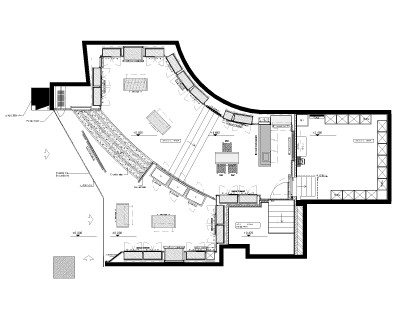
    3柜体<a href=https://www.yitu.cn/su/7656.html target=_blank class=infotextkey>插座</a><a href=https://www.yitu.cn/su/7392.html target=_blank class=infotextkey>平面</a>图

     

     

    柜体插座平面

     

     

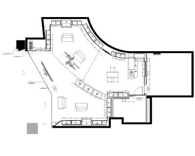
    4<a href=https://www.yitu.cn/su/7872.html target=_blank class=infotextkey>地</a>面铺装<a href=https://www.yitu.cn/su/7392.html target=_blank class=infotextkey>平面</a>图_看图王

     

     

    面铺装平面

     

     

    5立面索引图_看图王

     

     

    立面索引图

     

     

    6综合天<a href=https://www.yitu.cn/sketchup/huayi/index.html target=_blank class=infotextkey>花</a>图_看图王

     

     

    综合天

     

     

    <a href=https://www.yitu.cn/su/7103.html target=_blank class=infotextkey>联盟</a>素材库 (1)

     

     

    室内效果图1

     

     

    <a href=https://www.yitu.cn/su/7103.html target=_blank class=infotextkey>联盟</a>素材库 (2)

     

     

    室内效果图2

     

     

    <a href=https://www.yitu.cn/su/7103.html target=_blank class=infotextkey>联盟</a>素材库 (3)

     

     

    室内效果图3

     

     

    <a href=https://www.yitu.cn/su/7103.html target=_blank class=infotextkey>联盟</a>素材库 (4)

     

     

    室内效果图4

     

     

    <a href=https://www.yitu.cn/su/7103.html target=_blank class=infotextkey>联盟</a>素材库 (5)

     

     

    室内设计1

     

     

    <a href=https://www.yitu.cn/su/7103.html target=_blank class=infotextkey>联盟</a>素材库 (6)

     

     

    室内设计2

     

     

    <a href=https://www.yitu.cn/su/7103.html target=_blank class=infotextkey>联盟</a>素材库 (7)

     

     

    室内设计3

     

     

    <a href=https://www.yitu.cn/su/7103.html target=_blank class=infotextkey>联盟</a>素材库 (8)

     

     

    室内设计4

     

     

    <a href=https://www.yitu.cn/su/7103.html target=_blank class=infotextkey>联盟</a>素材库 (9)

     

     

    室内设计5

     

     

    总缩略图

     

     

    总缩略图

    更多

    热门标签

    找设计师请拨打:

    180-8488-1111
    登录