SU模型首页 商业零售

专卖店室内装修施工方案

资源大小:320.70 下载文件

资源详情

编号: 16927

软件: SketchUp2007

大小: 320.70

时间: 20191104

关键字:

  • 工程施工图
  • 基础施工图
  • 模型介绍

    空间划分:成套商业                      空间类型:专卖店

    图纸深度:施工图                          项目位置:上海

    设计风格:现代风格                      图纸格式:JPG,CAD2000

    设计时间:2018                            包含图片:效果图

    资料内容包含:机电图、效果图、装饰施工图(封面、图纸目录、施工设计说明、平面图纸、立面布置图等),动线安排问题也是设计的关键之一。就建筑内部环境来说,如何引导顾客进入商店,并使顾客顺利游览选购商品,灵活运用建筑面积以避免死角,安全、迅速疏散流是设计的主要目标。

     

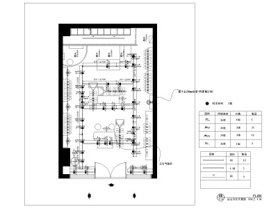
    1<a href=https://www.yitu.cn/su/7392.html target=_blank class=infotextkey>平面</a>布置图

     

    平面布置图

     

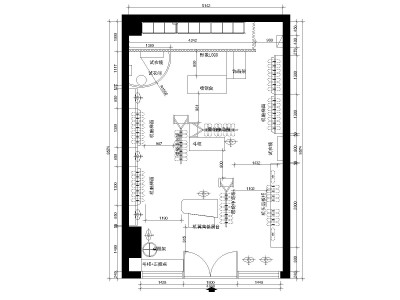
    2<a href=https://www.yitu.cn/su/7392.html target=_blank class=infotextkey>平面</a>放样图

     

    平面放样图

     

    3<a href=https://www.yitu.cn/su/7872.html target=_blank class=infotextkey>地</a>面完成图

     

    面完成图

     

    3墙面完成图

     

    墙面完成图

     

    4综合天<a href=https://www.yitu.cn/sketchup/huayi/index.html target=_blank class=infotextkey>花</a>布置图

     

    综合天布置图

     

    5<a href=https://www.yitu.cn/su/6833.html target=_blank class=infotextkey>灯具</a>布置图

     

    灯具布置图

     

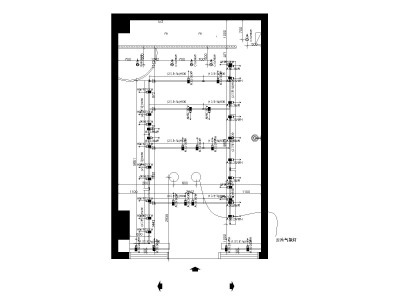
    6强电布置图

     

    强电布置图

     

    效果图 (1)

     

    效果图 (1)

     

    效果图 (2)

     

    效果图 (2)

     

    效果图 (3)

     

    效果图 (3)

     

    效果图 (4)

     

    效果图 (4)

     

    效果图 (5)

     

    效果图 (5)

     

    总缩略图

     

    总缩略图

    更多

    热门标签

    找设计师请拨打:

    180-8488-1111
    登录