SU模型首页 商业零售

专卖店室内装修设计全套施工方案

资源大小:1.70 下载文件

资源详情

编号: 16926

软件: SketchUp2007

大小: 1.70

时间: 20191104

关键字:

  • 工程施工图
  • 基础施工图
  • 模型介绍

    空间划分:成套商业                          空间类型:专卖店

    图纸深度:施工图                             项目位置:北京

    图纸格式:PDF                                 设计时间:2017

    简介:商业环境功能布局的要点是要以发挥出商业空间的最大作用,提高商业的经营效益为前提;同时还要考虑到方便与吸引顾客、易于营销活动的开展与管理。

     

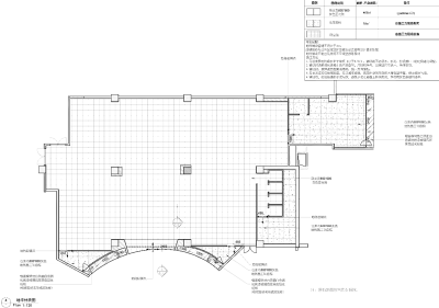
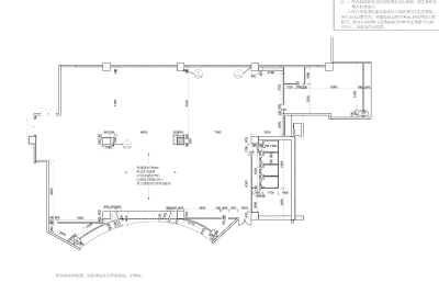
    1<a href=https://www.yitu.cn/su/7392.html target=_blank class=infotextkey>平面</a>布置图_看图王

     

    平面布置图

     

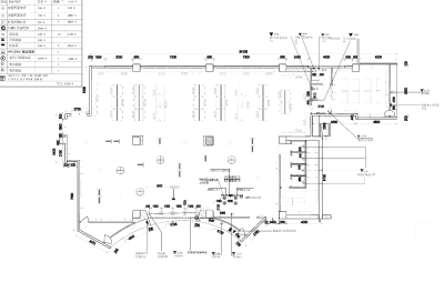
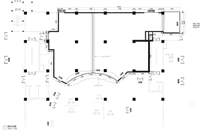
    1原始<a href=https://www.yitu.cn/su/7392.html target=_blank class=infotextkey>平面</a>图_看图王

     

    原始平面

     

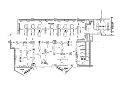
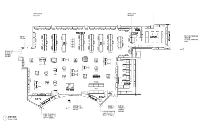
    2家具定位图

     

    家具定位图

     

    3新建墙体放样图_看图王

     

    新建墙体放样图

     

    5<a href=https://www.yitu.cn/su/7656.html target=_blank class=infotextkey>插座</a>分布图_看图王

     

    插座分布图

     

    5<a href=https://www.yitu.cn/su/7872.html target=_blank class=infotextkey>地</a>坪材质图_看图王

     

    坪材质图

     

    4护角及踢脚线示意图

     

    护角及踢脚线示意图

     

    6剖面图

     

    剖面图

     

    更多

    热门标签

    找设计师请拨打:

    180-8488-1111
    登录