SU模型首页 商业零售

理发店设计装修施工案例

资源大小:2.80 下载文件

资源详情

编号: 16924

软件: SketchUp2007

大小: 2.80

时间: 20191104

关键字:

  • 基础施工图
  • 工程施工图
  • 模型介绍

    图纸深度:施工图                       项目位置:浙江

    设计风格:现代风格                    图纸格式:CAD2000

    设计时间:2017                          包含图片:30张

    包含图片:效果图

    内容简介封面,目录,平面图(原始结构图,墙体拆除图,墙体新建图,平面布置图,平面尺寸图,面铺装图,顶面布置图,顶面尺寸图,灯具定位图,开关布置图,强电插座布置图,弱电插座布置图,管走向示意图,立面索引图);立面图,对所有的配套管线和效率低、耗能高、不利于环境保护的设备,进行全面更新改造及周边环境的绿化、美化、亮化。

    另附:效果图4张

    像素:1000*750

     

    [杭州]现代工业风理发店<a href=https://www.yitu.cn/su/7590.html target=_blank class=infotextkey>设计</a>效果图

     

    效果图

     

    [杭州]现代工业风理发店<a href=https://www.yitu.cn/su/7590.html target=_blank class=infotextkey>设计</a>效果图

     

    效果图

     

    [杭州]现代工业风理发店<a href=https://www.yitu.cn/su/7590.html target=_blank class=infotextkey>设计</a><a href=https://www.yitu.cn/su/7392.html target=_blank class=infotextkey>平面</a>图

     

    平面

     

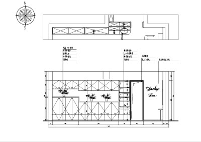
    [杭州]现代工业风理发店<a href=https://www.yitu.cn/su/7590.html target=_blank class=infotextkey>设计</a>立面图

     

    立面图

     

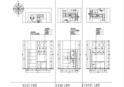
    [杭州]现代工业风理发店<a href=https://www.yitu.cn/su/7590.html target=_blank class=infotextkey>设计</a>立面图

     

    立面图

     

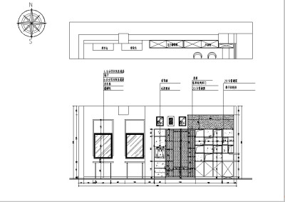
    [杭州]现代工业风理发店<a href=https://www.yitu.cn/su/7590.html target=_blank class=infotextkey>设计</a>立面图

     

    立面图

     

    [杭州]现代工业风理发店<a href=https://www.yitu.cn/su/7590.html target=_blank class=infotextkey>设计</a>缩略图

     

    缩略图

    更多

    热门标签

    找设计师请拨打:

    180-8488-1111
    登录