SU模型首页 商业零售

游客接待中心施工图案例

资源大小:83.10 下载文件

资源详情

编号: 16917

软件: SketchUp2007

大小: 83.10

时间: 20191104

关键字:

  • 建筑图纸大全
  • 工地施工图
  • 模型介绍

    空间划分:成套商业                               空间类型:店铺,其他

    图纸深度:竣工图                                   项目位置:吉林

    设计风格:现代风格,新中式风格         图纸格式:JPG,CAD2000,PDF

    设计时间:2019                                     包含图片:效果图

    层数:2层                                            建筑面积:2414m²

    资料内容包含:CAD施工图(图纸目录,施工图设计说明,平面图,立面图,节点大样,图纸等)材料表,工程量清单,招标文件等,接待中心的空间是重点,大的空间能容纳更多的游客前来游玩。

     

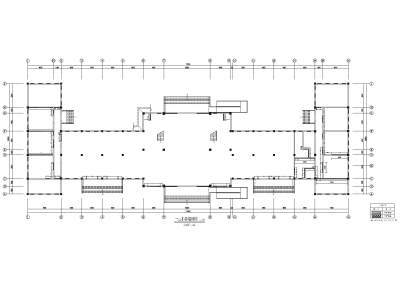
    一层<a href=https://www.yitu.cn/su/7392.html target=_blank class=infotextkey>平面</a>布置图

     

    一层平面布置图

     

    一层天<a href=https://www.yitu.cn/sketchup/huayi/index.html target=_blank class=infotextkey>花</a>布置图

     

    一层天布置图

     

    一层拆除墙体图

     

    一层拆除墙体图

     

    一层<a href=https://www.yitu.cn/su/7872.html target=_blank class=infotextkey>地</a>面铺装图

     

    一层面铺装图

     

    一层灭火器<a href=https://www.yitu.cn/su/7392.html target=_blank class=infotextkey>平面</a>布置图

     

    一层灭火器平面布置图

     

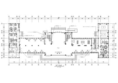
    二层<a href=https://www.yitu.cn/su/7392.html target=_blank class=infotextkey>平面</a>布置图

     

    二层平面布置图

     

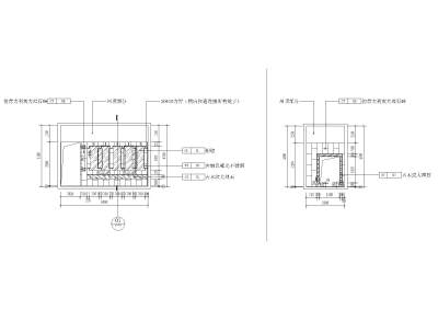
    二层立面图

     

    二层立面图

     

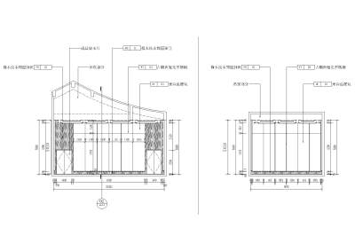
    一层立面图

     

    一层立面图

     

    一层立面图2

     

    一层立面图2

    更多

    热门标签

    找设计师请拨打:

    180-8488-1111
    登录