SU模型首页 商业零售

专卖店空间设计施工案例

资源大小:279.20 下载文件

资源详情

编号: 16899

软件: SketchUp2007

大小: 279.20

时间: 20191104

关键字:

  • 施工图规范
  • 设计施工图纸
  • 模型介绍

    空间划分:成套商业                             空间类型:专卖店

    图纸深度:竣工图                                项目位置:河南

    设计风格:现代风格                             图纸格式:CAD2000,JPG

    设计时间:2015                                    包含图片:效果图

    层数:1层

    建筑面积:190㎡

    内容简介:效果图、CAD施工图(图纸目录,施工图设计说明、平面图,立面图,节点大样等)材料表,方案,物料书,机电图纸等,虽然创新室内设计可以打造零售业态的核心竞争力,但合理适度、舒适宽松的购物空间对消费者来说也是至关重要的。

     

     

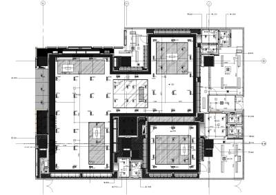
    <a href=https://www.yitu.cn/su/7392.html target=_blank class=infotextkey>平面</a>布置图

     

     

    平面布置图

     

     

    <a href=https://www.yitu.cn/su/7872.html target=_blank class=infotextkey>地</a>面铺装图

     

     

    面铺装图

     

     

    综合天<a href=https://www.yitu.cn/sketchup/huayi/index.html target=_blank class=infotextkey>花</a>图

     

     

    综合天

     

     

    天<a href=https://www.yitu.cn/sketchup/huayi/index.html target=_blank class=infotextkey>花</a>尺寸图

     

     

    尺寸图

     

     

    喷淋尺寸图

     

     

    喷淋尺寸图

     

     

    烟感尺寸图

     

     

    烟感尺寸图

     

     

    外立面

     

     

    店外立面

     

     

    幕墙内立面

     

     

    幕墙内立面

     

     

    1

     

     

    效果图

     

     

    3

     

     

    效果图

     

     

    4

     

     

    效果图

     

    更多

    热门标签

    找设计师请拨打:

    180-8488-1111
    登录