图纸深度:竣工图 项目位置:上海
设计风格:现代风格 图纸格式:JPG,CAD2000,PPT,PDF
设计时间:2017 包含图片:效果图
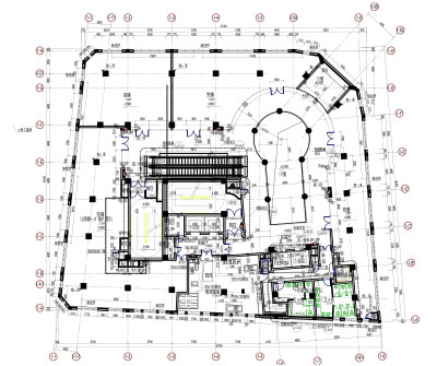
楼层数:2
资料内容包含:效果图、CAD施工图(图纸目录,施工图设计说明、平面图,立面图,节点大样等)材料表,方案,物料书,机电图纸等,相关研究表明,当顾客进入零售空间时,他们自然会向右转。为了充分利用这一点,零售商应在商店的右侧放置视觉上引人注目的标志或显示屏。这将自然地引导客户逆时针方向进行购物,事实证明这也是最优选的顾客购物路线。



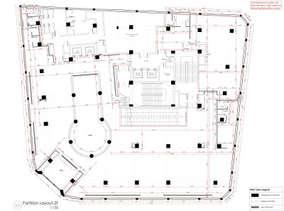
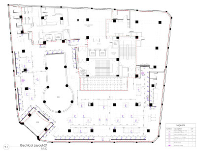
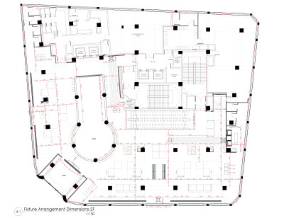
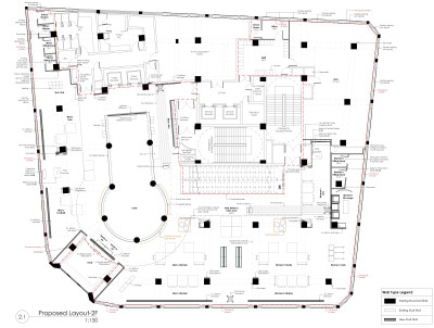
二层布局分析图



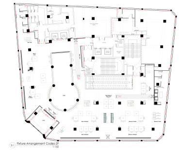
二层家具布置图




店效果图

180-8488-1111
登录