图纸深度:施工图 项目位置:辽宁
设计风格:现代风格 图纸格式:CAD2000,JPG,PPT,DF
设计时间:2016 包含图片:效果图
楼层数:1层
内容简介:效果图、CAD施工图(图纸目录,施工图设计说明、平面图,立面图,节点大样等)材料表,方案,物料书,机电图纸等,在进行商业空间设计时,零售商应该清楚的知道,他们规划的顾客动线,应清楚地了解,哪些产品放在什么位置会有利于引导顾客走入商店的最深层,接触更多深层的商,品,最终获得最多的消费。

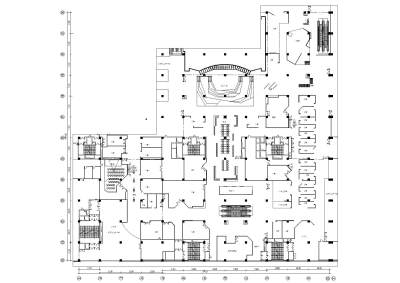
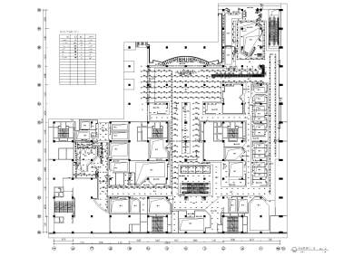
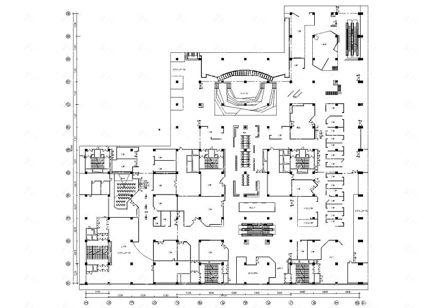
平面布局图

隔墙尺寸图

地面铺装图

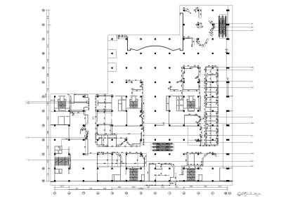
天花布置图

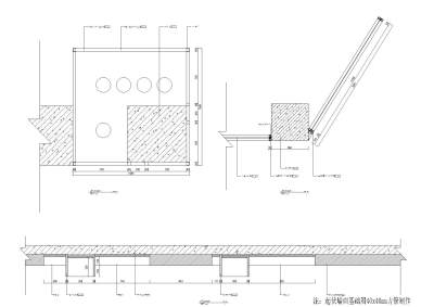
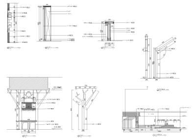
天花造型尺寸图


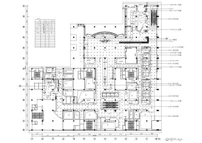
街区剖面图

街区剖面图2

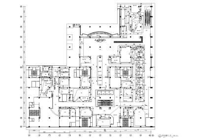
街区效果图-01(入口)

街区效果图-02(主通道)

街区效果图-03(街道)
180-8488-1111
登录