SU模型首页 商业零售

专卖店设计装修施工案例

资源大小:109.00 下载文件

资源详情

编号: 16867

软件: SketchUp2007

大小: 109.00

时间: 20191104

关键字:

  • 基础施工图
  • 室内施工图
  • 模型介绍

    空间划分:成套商业                                       空间类型:专卖店

    图纸深度:施工图                                          项目位置:上海

    设计风格:现代风格                                       图纸格式:CAD2000,JPG

    设计时间:2016                                              包含图片:效果图

    层数:1层

    内容简介:两版完整版室内装修CAD施工图(平面图、设备重量明细图、天照明隐蔽线路走向图、面铺装图、天图、立面图分析图等)、效果图等,大胆的展示自己的空间、以创新的方式吸引顾客,通过巧妙的颜色选择、亮眼的VI设计以及别具一格的室内设计,让顾客沉浸于整个购物环境,加强品牌在顾客心中的印象,最终记住品牌引导再消费。

     

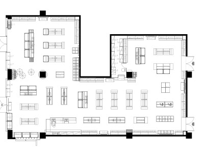
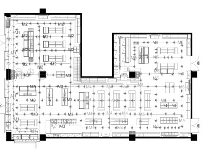
    1<a href=https://www.yitu.cn/su/7392.html target=_blank class=infotextkey>平面</a>图_看图王

     

    平面

     

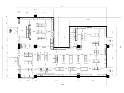
    2设备重量明细图_看图王

     

    设备重量明细图

     

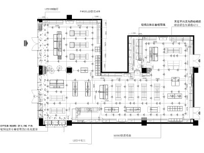
    3天<a href=https://www.yitu.cn/sketchup/huayi/index.html target=_blank class=infotextkey>花</a>照明隐蔽线路走向图_看图王

     

    照明隐蔽线路走向图

     

    4<a href=https://www.yitu.cn/su/7872.html target=_blank class=infotextkey>地</a>面铺装图_看图王

     

    面铺装图

     

    5天<a href=https://www.yitu.cn/sketchup/huayi/index.html target=_blank class=infotextkey>花</a>图_看图王

     

     

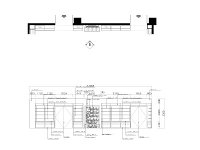
    6立面分析图1_看图王

     

    立面图分析图1

     

    7立面图分析图2_看图王

     

    立面图分析图2

     

    180723_SH_POPC_R01 001-Perspective

     

    效果图

     

    180723_SH_POPC_R01 003-Perspective

     

    效果图2

     

    180723_SH_POPC_R01 005-Perspective

     

    效果图3

     

    180723_SH_POPC_R01 006-Perspective

     

    效果图4

     

    180723_SH_POPC_R01 007-Perspective

     

    效果图5

     

    180723_SH_POPC_R01 009-Perspective

     

    效果图6

     

    总缩略图

     

    总缩略图

    更多

    热门标签

    找设计师请拨打:

    180-8488-1111
    登录