SU模型首页 商业零售

品牌服装专卖店室内施工图

资源大小:5.80 下载文件

资源详情

编号: 16849

软件: SketchUp2007

大小: 5.80

时间: 20191104

关键字:

  • 建筑图纸大全
  • 流水施工图
  • 模型介绍

    空间划分:成套商业                                     空间类型:专卖店

    图纸深度:竣工图                                         项目位置:上海

    设计风格:现代风格                                      图纸格式:CAD2000,JPG

    设计时间:2018                                            包含图片:效果图

    层数:1层

    内容简介:效果图、CAD施工图(图纸目录,施工图设计说明、平面图,立面图,节点大样等)材料表,方案,物料书,机电图纸等,相关研究表明,当顾客进入零售空间时,他们自然会向右转。为了充分利用这一点,零售商应在商店的右侧放置视觉上引注目的标志或显示屏。

     

     

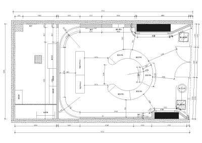
    <a href=https://www.yitu.cn/su/7392.html target=_blank class=infotextkey>平面</a>布置图

     

     

    平面布置图

     

     

    综合天<a href=https://www.yitu.cn/sketchup/huayi/index.html target=_blank class=infotextkey>花</a>图

     

     

    综合天

     

     

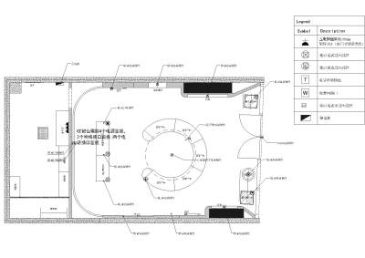
    <a href=https://www.yitu.cn/su/6833.html target=_blank class=infotextkey>灯具</a>定位图

     

     

    灯具定位图

     

     

    <a href=https://www.yitu.cn/su/7872.html target=_blank class=infotextkey>地</a>面布置图

     

     

    面布置图

     

     

    电气系统图

     

     

    电气系统图

     

     

    机电布置图

     

     

    机电布置图

     

     

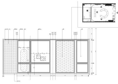
    立面图

     

     

    立面图

     

     

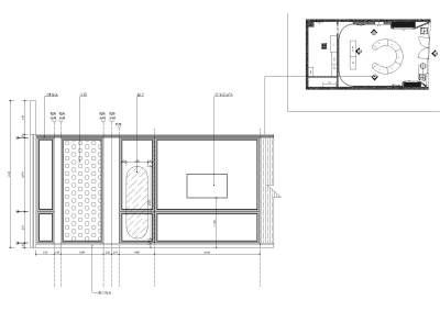
    立面图2

     

     

    立面图2

     

     

    立面图3

     

     

    立面图3

     

    更多

    热门标签

    找设计师请拨打:

    180-8488-1111
    登录