SU模型首页 商业零售

专卖店空间设计施工图

资源大小:421.40 下载文件

资源详情

编号: 16794

软件: SketchUp2007

大小: 421.40

时间: 20191102

关键字:

  • 工程施工图
  • 建筑图纸大全
  • 模型介绍

    空间划分:成套商业                                   空间类型:专卖店

    图纸深度:施工图                                       设计风格:现代风格

    图纸格式:JPG,CAD2000,PDF,PPT           包含图片:效果图

    内容简介灯具选型、综合天布置图、面布置图、墙体饰面图、店铺标准材料、企业文化、平面设计、区域设计、电气设计、暖通设计、消防设计、立面图、节点大样图,空间分离方式的不同,又决定了空间之间的联系程度,以及空间的美感、情趣和意境的创造,故在空间组合中需反复推敲。

    另附效果图

     

     

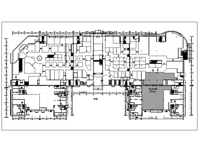
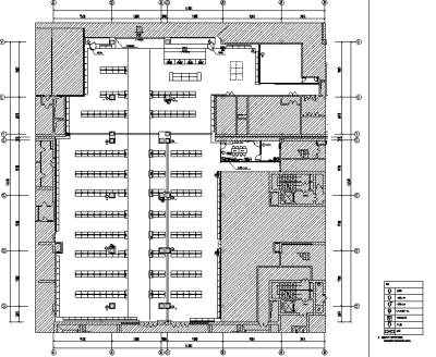
    总<a href=https://www.yitu.cn/su/7392.html target=_blank class=infotextkey>平面</a>图

     

     

    平面

     

     

    <a href=https://www.yitu.cn/su/7656.html target=_blank class=infotextkey>插座</a>布置图

     

     

    插座布置图

     

     

    <a href=https://www.yitu.cn/su/7872.html target=_blank class=infotextkey>地</a>材布置图

     

     

    材布置图

     

     

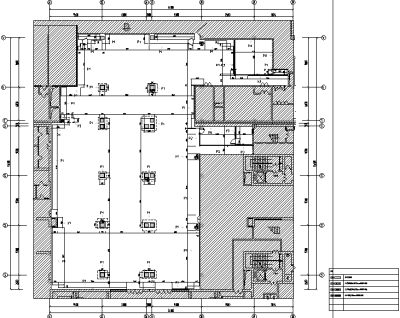
    隔墙布置图

     

     

    隔墙布置图

     

     

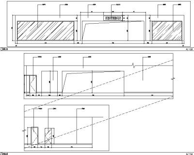
    立面图

     

     

    立面图

     

     

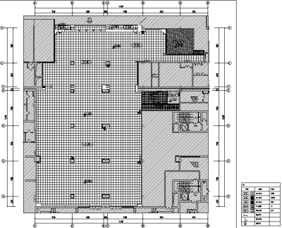
    <a href=https://www.yitu.cn/sketchup/zhanguihuojia/index.html target=_blank class=infotextkey>货架</a>布置

     

     

    货架布置

     

     

    门店<a href=https://www.yitu.cn/su/7590.html target=_blank class=infotextkey>设计</a>

     

     

    门店设计

     

     

    <a href=https://www.yitu.cn/su/7392.html target=_blank class=infotextkey>平面</a>布局

     

     

    平面布局

     

     

    前场天<a href=https://www.yitu.cn/sketchup/huayi/index.html target=_blank class=infotextkey>花</a>原则

     

     

    前场天原则

     

     

    通道<a href=https://www.yitu.cn/su/7590.html target=_blank class=infotextkey>设计</a>原则

     

     

    通道设计原则

     

     

    综合天<a href=https://www.yitu.cn/sketchup/huayi/index.html target=_blank class=infotextkey>花</a>

     

     

    综合天

     

     

    DECATHLON-哈尔滨乐松 建筑外立面-03-25

     

     

    建筑外立面

     

     

    DECATHLON-哈尔滨乐松 内街立面-03-25

     

     

    内街效果图

     

     

    DECATHLON-江门万达 内街立面-06-19

     

     

    效果图

    更多

    热门标签

    找设计师请拨打:

    180-8488-1111
    登录