SU模型首页 商业零售

旗舰店装修全套施工图案例

资源大小:569.40 下载文件

资源详情

编号: 16773

软件: SketchUp2007

大小: 569.40

时间: 20191102

关键字:

  • 工程图纸设计
  • 建筑设计施工图纸
  • 模型介绍

    空间划分:成套商业                          空间类型:专卖店

    图纸深度:竣工图                              项目位置:上海

    设计风格:现代风格                          图纸格式:JPG,CAD2000

    层数:2层                                      设计时间:2017

    包含图片:效果图

    内容简介:效果图、CAD施工图(图纸目录,施工图设计说明、平面图,立面图,节点大样等)材料表,方案,软装方案,家具深化,物料书等,在整个大的消费趋势理性化的今天,更多的不是追求奢华和豪华!而是追求适合自己品味的空间,而空间的品味从某种角度决定着商业空间的根基。

     

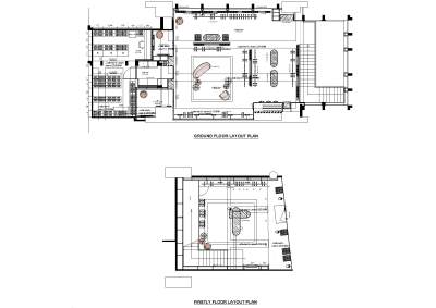
    一层<a href=https://www.yitu.cn/su/7392.html target=_blank class=infotextkey>平面</a>布置图

     

    平面布置图

     

    一层梁结构<a href=https://www.yitu.cn/su/7392.html target=_blank class=infotextkey>平面</a>布置图

     

    梁结构平面布置图

     

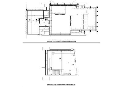
    一层墙体尺寸图

     

    墙体尺寸图

     

    一层<a href=https://www.yitu.cn/su/7872.html target=_blank class=infotextkey>地</a>面铺装图

     

    面铺装图

     

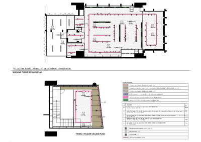
    一层灯位布置图

     

    灯位布置图

     

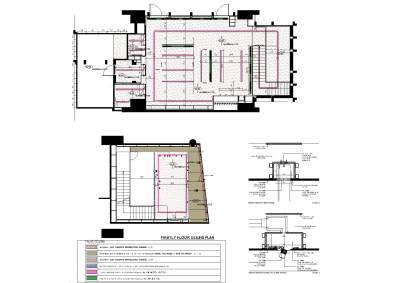
    天<a href=https://www.yitu.cn/sketchup/huayi/index.html target=_blank class=infotextkey>花</a>尺寸图

     

    尺寸图

     

    照明<a href=https://www.yitu.cn/su/7392.html target=_blank class=infotextkey>平面</a>图

     

    照明平面

     

    跃层<a href=https://www.yitu.cn/sketchup/louti/index.html target=_blank class=infotextkey><a href=https://www.yitu.cn/su/6782.html target=_blank class=infotextkey><a href=https://www.yitu.cn/su/8159.html target=_blank class=infotextkey>楼</a>梯</a></a>立面图

     

    跃层梯立面图

     

    立面图

     

    立面图

     

    效果图 (1)

     

    效果图

     

    效果图 (2)

     

    效果图

     

    效果图 (13)

     

    效果图

    更多

    热门标签

    找设计师请拨打:

    180-8488-1111
    登录