SU模型首页 商业零售

郑州金水支行装饰工程图纸

资源大小:21.80 下载文件

资源详情

编号: 16268

软件: SketchUp2007

大小: 21.80

时间: 20191026

关键字:

  • 施工图规范
  • 施工平面图
  • 模型介绍

    空间类型:银行                           图纸深度:竣工图

    项目位置:河南                           设计风格:现代风格

    图纸格式:JPG,CAD2000          设计时间:2016

    包含图片:效果图                       空间划分:成套商业

    内容简介

    资料内容包含:效果图、CAD施工图(图纸目录,施工图设计说明,平面图,立面图,节点大样等)材料表等。通过改造装饰,利用设计师的想法,改变外观,贴切生活,统一风格,使其更加规范,安全。

     

     

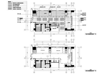
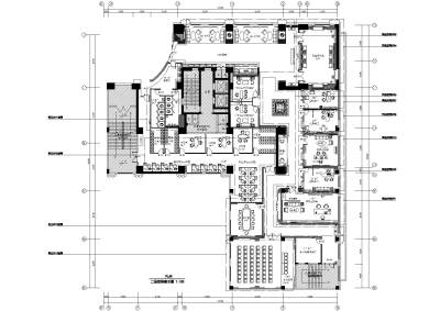
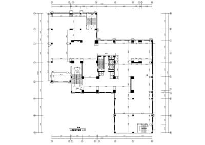
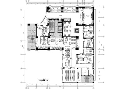
    <a href=https://www.yitu.cn/su/7392.html target=_blank class=infotextkey>平面</a>布置图

     

     

    平面布置图

     

     

    索引图

     

     

    索引图

     

     

    原始<a href=https://www.yitu.cn/su/7392.html target=_blank class=infotextkey>平面</a>图

     

     

    原始平面

     

     

    天<a href=https://www.yitu.cn/sketchup/huayi/index.html target=_blank class=infotextkey>花</a>布置图

     

     

    布置图

     

     

    <a href=https://www.yitu.cn/su/7872.html target=_blank class=infotextkey>地</a>面铺装图

     

     

    面铺装图

     

     

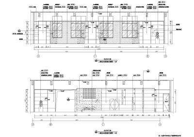
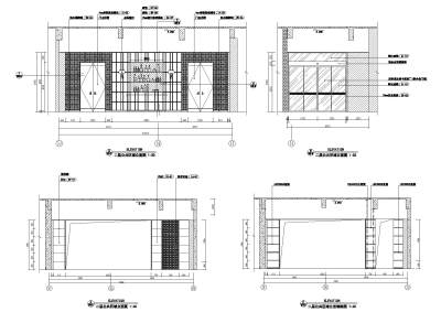
    立面图

     

     

    立面图

     

     

    立面图2

     

     

    立面图2

     

     

    立面图3

     

     

    立面图3

     

     

    立面图4

     

     

    立面图4

     

     

    大样图

     

     

    大样图

    更多

    热门标签

    找设计师请拨打:

    180-8488-1111
    登录