SU模型首页 酒店宾馆

民宿客房施工图CAD图纸,酒店民宿cad设计图纸下载

资源大小:11.20 下载文件

资源详情

编号: 91908

软件: SketchUp2007

大小: 11.20

时间: 20211128

关键字:

  • 民宿
  • 模型介绍

                                       空间划分:成套酒店                                                                  图纸深度:施工图

                                       图纸格式:JPG                                                                          设计风格:现代

    资料为:民宿客房施工图CAD图纸

    资料内容包括:全套施工图、坪布置图、天布置图、灯具定位图、开关控制图、机电电位图、家具索引图、客房立面图、三间立面图、三平面布置图、隔墙尺寸图。空间设置合理规范,具有较高的参考价值,可作为参考学习的模板,供设计师、建筑师下载参考。

    部分图纸展示如下:

    <a href=https://www.yitu.cn/su/7872.html target=_blank class=infotextkey>地</a>坪布置图、天<a href=https://www.yitu.cn/sketchup/huayi/index.html target=_blank class=infotextkey>花</a>布置图.jpg

     

    坪布置图、天布置图

     

    <a href=https://www.yitu.cn/su/6833.html target=_blank class=infotextkey>灯具</a>定位图、开关控制图.jpg

     

    灯具定位图、开关控制图

     

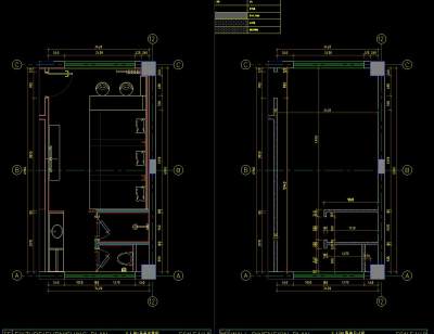
    机电电位图、家具索引图.jpg

     

    机电电位图、家具索引图

     

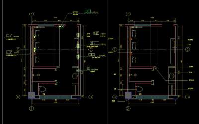
    客房立面图.jpg
     

    客房立面图

     

    三<a href=https://www.yitu.cn/su/8090.html target=_blank class=infotextkey>人</a>间立面图.jpg

     

    间立面图

     

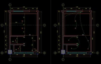
    三<a href=https://www.yitu.cn/su/8090.html target=_blank class=infotextkey>人</a>间<a href=https://www.yitu.cn/su/7392.html target=_blank class=infotextkey>平面</a>布置图、隔墙尺寸图.jpg

     

    平面布置图、隔墙尺寸图

     

    三<a href=https://www.yitu.cn/su/8090.html target=_blank class=infotextkey>人</a>间<a href=https://www.yitu.cn/su/7392.html target=_blank class=infotextkey>平面</a>图、<a href=https://www.yitu.cn/sketchup/diantizoulang/index.html target=_blank class=infotextkey>走廊</a>.jpg

     

    平面

    更多

    热门标签

    找设计师请拨打:

    180-8488-1111
    登录