SU模型首页 酒店宾馆

混搭风格渔人码头时尚火锅CAD施工图,火锅CAD建筑图纸下载

资源大小:16.40 下载文件

资源详情

编号: 20213

软件: SketchUp2007

大小: 16.40

时间: 20191127

关键字:

  • 港口
  • 码头
  • 模型介绍

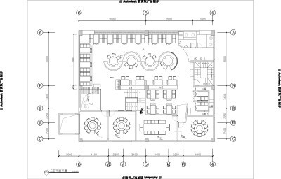
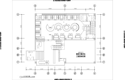
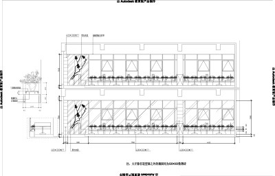
     混搭风格渔时尚火锅CAD施工图,火锅CAD建筑图纸下载内容简介:图纸含有火锅店平面布置图、天布置图、开关布置图、总平面图、节点大样图、装修效果图等,内容详实,文字标注统一,具有较高的参考价值。

    部分图纸展示:

    01.jpg

     

    02.jpg

    混搭风格渔时尚火锅CAD施工图

    04.jpg

     

    混搭风格渔时尚火锅CAD施工图

     

    06.jpg

     

    混搭风格渔时尚火锅CAD施工图

    更多

    热门标签

    找设计师请拨打:

    180-8488-1111
    登录