SU模型首页 酒店宾馆

混搭得悦饭庄CAD施工图,饭庄CAD建筑图纸下载

资源大小:15.60 下载文件

资源详情

编号: 20211

软件: SketchUp2007

大小: 15.60

时间: 20191127

关键字:

模型介绍

 混搭得悦饭庄CAD施工图,饭庄CAD建筑图纸下载内容简介:图纸含有酒店CAD平面布置图、天布置图、开关布置图、天灯具定位图、内容详实,具有较高的参考价值。

部分图纸展示:

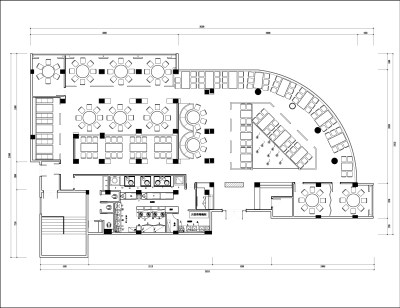
01.jpg

混搭得悦饭庄CAD施工图

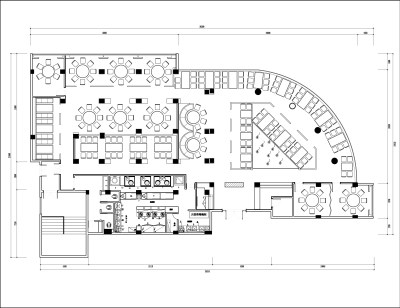
02.jpg

 

混搭得悦饭庄CAD施工图

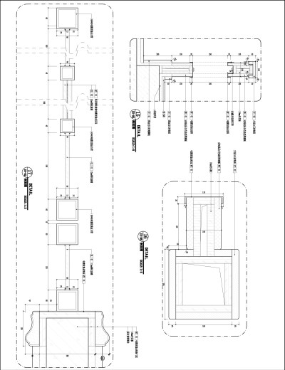
01.jpg

混搭得悦饭庄CAD施工图

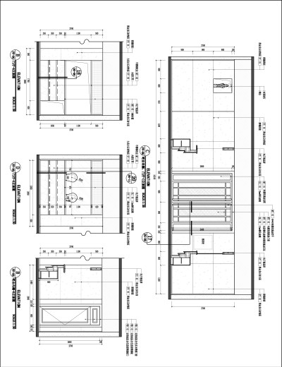
06.jpg

 

混搭得悦饭庄CAD施工图

更多

热门标签

找设计师请拨打:

180-8488-1111
登录