SU模型首页 酒店宾馆

混搭风格福州教育新濠酒店,酒店CAD建筑图纸下载

资源大小:134.60 下载文件

资源详情

编号: 20210

软件: SketchUp2007

大小: 134.60

时间: 20191127

关键字:

模型介绍

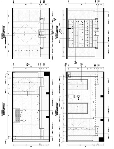
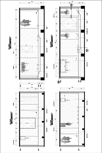
 混搭风格福州教育新濠酒店酒店CAD建筑图纸下载内容简介:图纸含有酒店平面布置图、天布置图、开关布置图、面铺装图、装修效果图等,内容详实,具有较高的参考价值。

部分图纸展示:

01.jpg

混搭风格福州教育新濠酒店

02.jpg

混搭风格福州教育新濠酒店

03.jpg

混搭风格福州教育新濠酒店

04.jpg

混搭风格福州教育新濠酒店

06.jpg

混搭风格福州教育新濠酒店

07.jpg

混搭风格福州教育新濠酒店

08.jpg

 

混搭风格福州教育新濠酒店

更多

热门标签

找设计师请拨打:

180-8488-1111
登录