SU模型首页 节点大样

现代无障碍通道施工图CAD图纸下载

资源大小:0.10 下载文件

资源详情

编号: 94980

软件: SketchUp2007

大小: 0.10

时间: 20220812

关键字:

  • 图纸
  • cad
  • 模型介绍

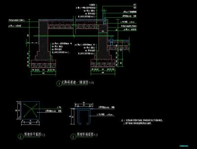
    资料内容包括:全套施工图、断面图、剖面图、无障碍通道立面图、无障碍通道平面图等。空间设置合理规范,具有较高的参考价值,可作为参考学习的模板,供设计师、师下载参考。

    部分图纸展示如下:

    断面图.jpg

     

    断面图

     

    剖面图.jpg

     

    剖面图

     

    无障碍通道立面图.jpg

     

    无障碍通道立面图

     

    无障碍通道<a href=https://www.yitu.cn/su/7392.html target=_blank class=infotextkey>平面</a>图.jpg

     

    无障碍通道平面

    更多

    热门标签

    找设计师请拨打:

    180-8488-1111
    登录