SU模型首页 节点大样

原创背栓式石材CAD节点图,背栓石材CAD施工图纸下载

资源大小:2.00 下载文件

资源详情

编号: 21969

软件: SketchUp2007

大小: 2.00

时间: 20191221

关键字:

  • 石材
  • 模型介绍

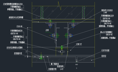
     原创背栓式材CAD节点图,背栓材CAD施工图纸下载内容简介:图纸含有剖面节点详图、节点大样图、立面图等,内容详实,作图规范,具有较高的参考价值。

    部分图纸展示:

    QQ截图20191221095500.png

     

    剖面节点详图

     

    QQ截图20191221095507.png

     

    平面节点图

     

    QQ截图20191221095514.png

     

    节点详图

     

    QQ截图20191221095523.png

     

    节点大样图

     

    QQ截图20191221095528.png

     

    节点大样图

    更多

    热门标签

    找设计师请拨打:

    180-8488-1111
    登录