SU模型首页 节点大样

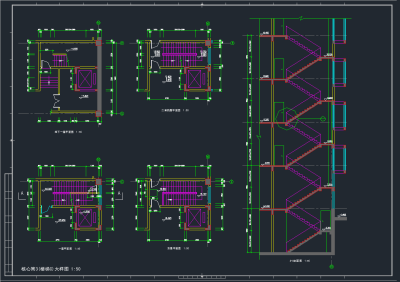
电梯、楼梯、货梯节点大样图,节点大样CAD施工图纸下载

资源大小:1.00 下载文件

资源详情

编号: 19957

软件: SketchUp2007

大小: 1.00

时间: 20191125

关键字:

  • 电梯
  • 模型介绍

     电梯梯、货梯节点大样图,节点大样CAD施工图纸下载内容简介:文件的内容包含节点大样图,这其中图纸细节详尽丰富,相对而言具有较的参考价值与学习价值,方便用于学习参考

    部分图片:

    144.png

    施工图

     

    9d2343c38f60bef7602dc908a75e95bb.png

    施工图

     

    9ecf03cae2c21d6a0bb4946cb626159f.png

    施工图

     

    522b915a35112557e3edf99ff35c5428.png

    施工图

     

    063707aff8d7cf962d8db95b18edb4d8.png

    施工图

     

    a7933e5c86e007829b4e6d86dc4d06d4.png

    施工图

     

    更多

    热门标签

    找设计师请拨打:

    180-8488-1111
    登录