编号: 18160
软件: SketchUp2007
大小: 32.60
时间: 20191112
关键字:
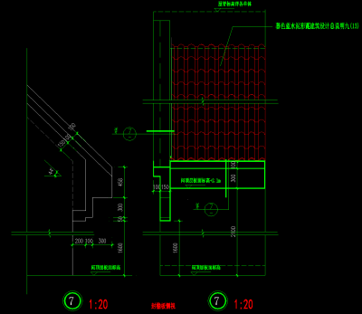
檐口天沟大样施工图,檐口天沟CAD施工图下载内容详情:北向天沟,屋面详图,别墅用檐口详图,滴水线详图,顶层及檐口大样图,泛水,封檐板侧视,图纸种类众多,内容详实。
部分内容展示:

<SPAn style="text-align: start;">北向天沟,屋面详图SPAn>

<SPAn style="text-align: start;">别墅用檐口详图SPAn>

<SPAn style="text-align: start;">滴水线详图SPAn>

<SPAn style="text-align: start;">顶层及檐口大样图SPAn>
<SPAn style="text-align: start;">
SPAn>
<SPAn style="text-align: start;">泛水SPAn>
<SPAn style="text-align: start;">
SPAn>
180-8488-1111
登录