SU模型首页 节点大样

观光电梯轿厢详图,观光电梯轿厢CAD施工图下载

资源大小:0.60 下载文件

资源详情

编号: 18066

软件: SketchUp2007

大小: 0.60

时间: 20191111

关键字:

  • 电梯
  • 模型介绍

     观光电梯轿厢详图,观光电梯轿厢CAD施工图下载内容详情:<SPAn style="text-align: center;">电梯轿厢立面图,图纸详细完整SPAn>

    部分图纸展示:

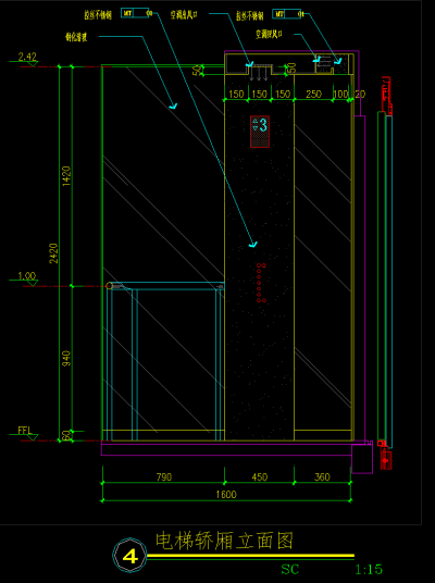
    4.png

     

    电梯轿厢立面图

     

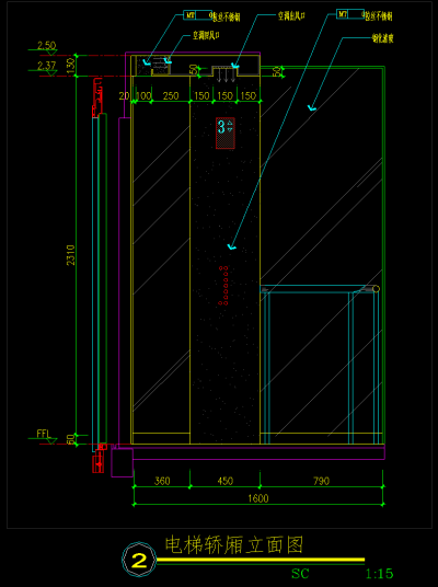
    5.png

     

    电梯轿厢立面图

     

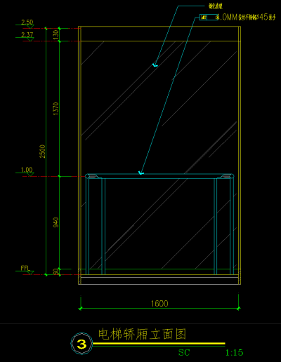
    6.png

     

    电梯轿厢立面图

     

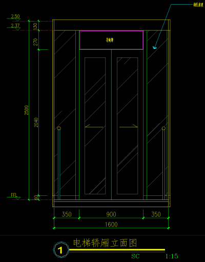
    7.png

     

    电梯轿厢立面图

     

    更多

    热门标签

    找设计师请拨打:

    180-8488-1111
    登录