SU模型首页 节点大样

某时尚造型发廊装修图

资源大小:5.10 下载文件

资源详情

编号: 16199

软件: SketchUp2007

大小: 5.10

时间: 20191026

关键字:

  • 设计施工图
  • 工程施工图
  • 模型介绍

     文件格式:dwg                      文件大小:5.11MB

    设计类别:施工图                   貌:绿

    设计风格:现代风格                 图纸格式:JPG

    内容简介

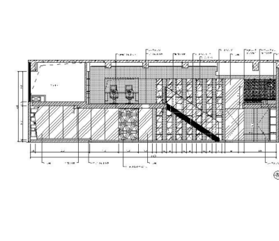
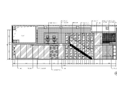
    时尚造型发廊装修图(含效果) 共30张。采用现代的设计风格,对原始结构图、尺寸布置图、平面布置图、天布置图、材布置图、立面装饰图、剖面图及节点等 效果图进行初步设计,加强景观细部设计

     

     

    某时尚造型发廊装修图(含效果)_1

    图一

     

     

    某时尚造型发廊装修图(含效果)_2

    图二

     

     

    某时尚造型发廊装修图(含效果)_3

    图三

     

     

    图5

     

    图四

     

    图5

     

    图五

     

    图6

     

    图六

     

    图6

     

    图七

    更多

    热门标签

    找设计师请拨打:

    180-8488-1111
    登录