SU模型首页 其它建筑图纸

现代农村客家民居楼施工图,居民楼CAD建筑图纸下载

资源大小:0.60 下载文件

资源详情

编号: 23606

软件: SketchUp2007

大小: 0.60

时间: 20200531

关键字:

  • 民居
  • 模型介绍

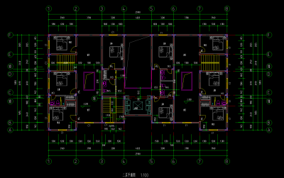
     现代农村客家民居施工图,居民CAD建筑图纸下载内容简介:图纸包含平面图、立面图、剖面图、节点大样图等,作图规范,内容详实,可供参考。

    部分图纸展示:

    QQ截图20200531105436.png

     

    平面

     

    QQ截图20200531105445.png

     

    立面图

     

    QQ截图20200531105455.png

     

    节点大样图

    更多

    热门标签

    找设计师请拨打:

    180-8488-1111
    登录