SU模型首页 其它建筑图纸

徽式四合院CAD施工图,四合院CAD建筑图纸下载

资源大小:2.20 下载文件

资源详情

编号: 23593

软件: SketchUp2007

大小: 2.20

时间: 20200531

关键字:

模型介绍

 

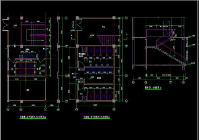
 徽式合院CAD施工图,合院CAD建筑图纸下载内容简介:里面含有平面布置图,立面图,剖面图,图纸制作规范,具有参考价值。

部分图纸如下:

大样.jpg

 

节点大样

 

立面.jpg

 

立面图

 

<a href=https://www.yitu.cn/su/7392.html target=_blank class=infotextkey>平面</a>.jpg

 

平面

 

<a href=https://www.yitu.cn/su/7392.html target=_blank class=infotextkey>平面</a>1.jpg

 

平面

 

屋顶<a href=https://www.yitu.cn/su/7392.html target=_blank class=infotextkey>平面</a>.jpg

 

平面

 

几点打样.jpg

 

节点大样

 

 

更多

热门标签

找设计师请拨打:

180-8488-1111
登录