SU模型首页 其它建筑图纸

江南民居CAD施工图,民居CAD建筑图纸下载

资源大小:0.50 下载文件

资源详情

编号: 23557

软件: SketchUp2007

大小: 0.50

时间: 20200530

关键字:

  • 民居
  • 模型介绍

     江南民居CAD施工图,民居CAD建筑图纸下载内容简介:图纸包含平面图、立面图、剖面图、节点大样图等,作图规范,内容详实,可供参考。

    部分图纸展示:

    QQ截图20200530201233.png

     

    立面图

     

    QQ截图20200530201243.png

     

    节点大样图

     

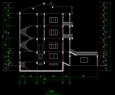
    QQ截图20200530201251.png

     

    剖面图

     

    QQ截图20200530201256.png

     

    节点大样图

     

    QQ截图20200530201308.png

     

    一层平面

    更多

    热门标签

    找设计师请拨打:

    180-8488-1111
    登录